ΘΗΣΕΙΟ – ΠΟΛΥΚΑΤΟΙΚΙΑ
Περιγραφή έργου

Εργοδότης : Ιδιώτες

Έτος Μελέτης : 2020 – 2021

Αρχιτεκτονική μελέτη : Μουτζουράκης Παναγιώτης

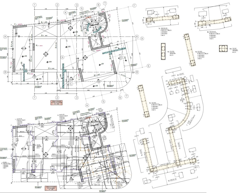
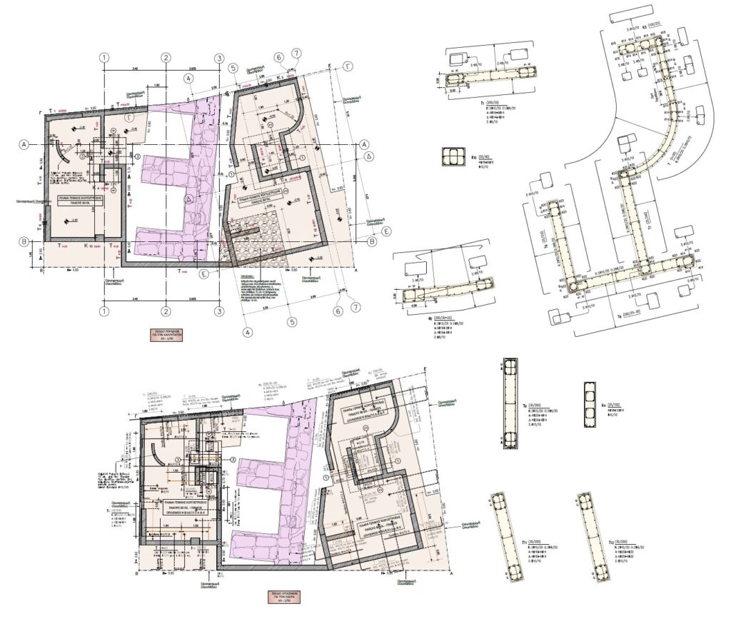
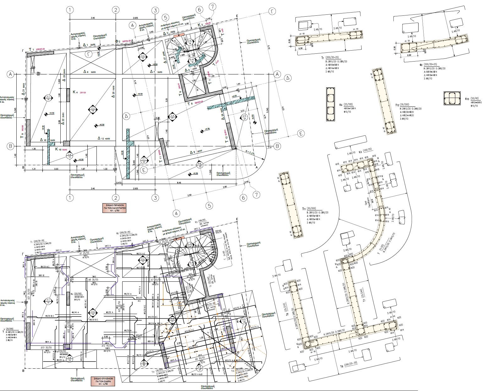
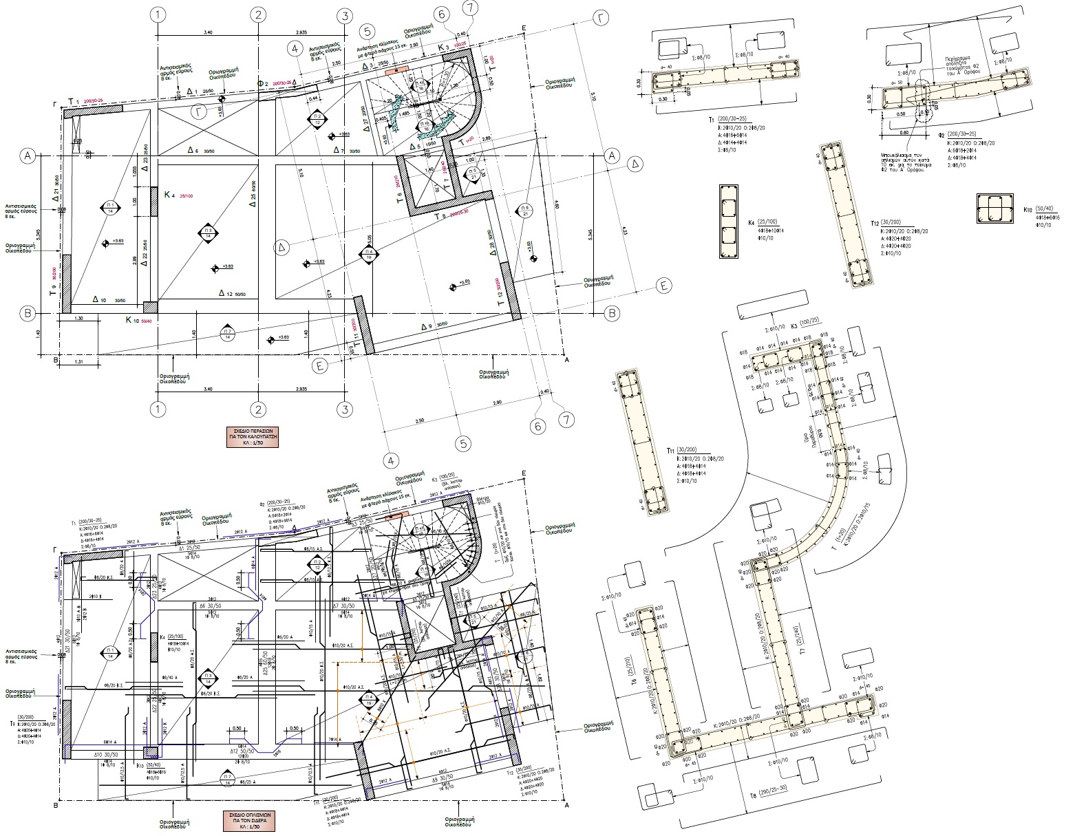
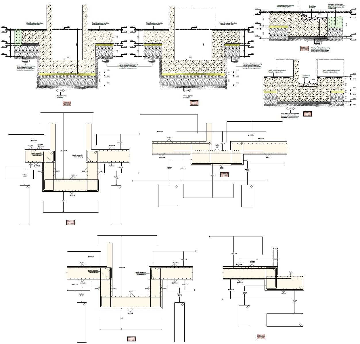
Η μελέτη αφορά πενταόροφη πολυκατοικία με πυλωτή και υπόγειους χώρους, στην περιοχή του Θησείου, Αθήνα. Ο Φέρων Οργανισμός του κτιρίου είναι από οπλισμένο σκυρόδεμα, με πλάκες γενικής κοιτόστρωσης, σε ότι αφορά την θεμελίωση.

Στο οικόπεδο έχει ήδη κατά το παρελθόν πραγματοποιηθεί αρχαιολογική εκσκαφή, διότι έχει αποκαλυφθεί τμήμα αρχαίου τείχους μαζί με σημαντικό τμήμα των αντηρίδων του. Το τείχος αυτό διατρέχει εγκάρσια το οικόπεδο στο μεσαίο τμήμα του. Η διατήρηση και ταυτόχρονη ανάδειξη του, απαιτεί την κατασκευή δύο ανεξάρτητων υπόγειων χώρων πέριξ αυτού καθώς και την αποφυγή θέσεως οιουδήποτε κατακόρυφου υποστυλώματος άνωθεν του . Η μελέτη προβλέπει κατ’ αρχήν την περαιτέρω υποβίβαση της εκσκαφής, για την κατασκευή των δύο υπογείων χώρων του κτιρίου καθώς και την κατασκευή δύο ανεξάρτητων πλακών γενικής κοιτοστρώσεως, για την έδραση αυτών.

Για την μελέτη και διαστασιολόγηση των δύο αυτών πλακών κοιτοστρώσεως, έγινε ιδιαίτερη πρόσθετη ανάλυση με μόρφωση των πλακών αυτών από πεπερασμένα στοιχεία (finite elements), χρησιμοποιήθηκε δε το πρόγραμμα Η/Υ SAP2000. Η ενδοτικότητα του εδάφους ελήφθη υπόψη με εισαγωγή συγκεντρωμένων ελατηρίων ανά κόμβο, με σταθερά αυτή που αντιστοιχεί στο εμβαδόν επιρροής του κόμβου. Προκειμένου επίσης το μοντέλο να είναι ακόμη πιο ρεαλιστικό, επίσης με πεπερασμένα στοιχεία εδόθησαν και τα περιμετρικά τοιχώματα των δύο υπόγειων χώρων, ούτως ώστε να αναπαραστηθεί με ακόμη μεγαλύτερη ακρίβεια η διαφραγματική λειτουργία των τοιχωμάτων αυτών εντός του κατακόρυφου επιπέδου τους καθώς και η μερική πάκτωση που επιβάλλουν στις πλάκες γενικής κοιτόστρωσης, όταν αυτές συστρέφονται λόγω της βύθισής από τα φορτία που μεταβιβάζουν αυτά τα τοιχώματα.

Φωτογραφικό υλικό εργου