ΠΕΤΡΑΛΩΝΑ – ΠΟΛΥΚΑΤΟΙΚΙΑ
Περιγραφή έργου
Εργοδότης : ΑΦΟΙ ΣΙΔΗΡΟΠΟΥΛΟΙ Α.Ε. – Κατασκευαστική Εταιρεία
Έτος Μελέτης : 2020
Κατασκευαστής : ΑΦΟΙ ΣΙΔΗΡΟΠΟΥΛΟΙ Α.Ε. – Κατασκευαστική Εταιρεία
Αρχιτεκτονική μελέτη : Μανώχης Πέτρος
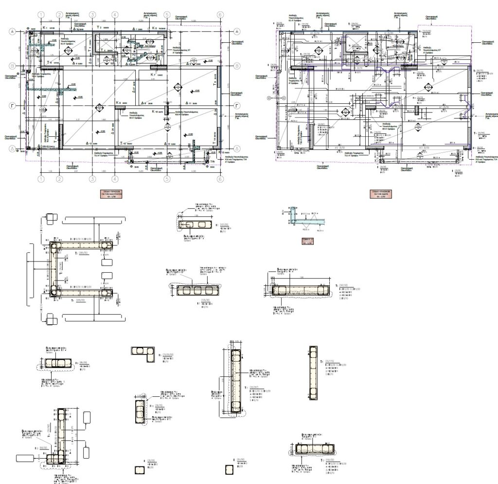
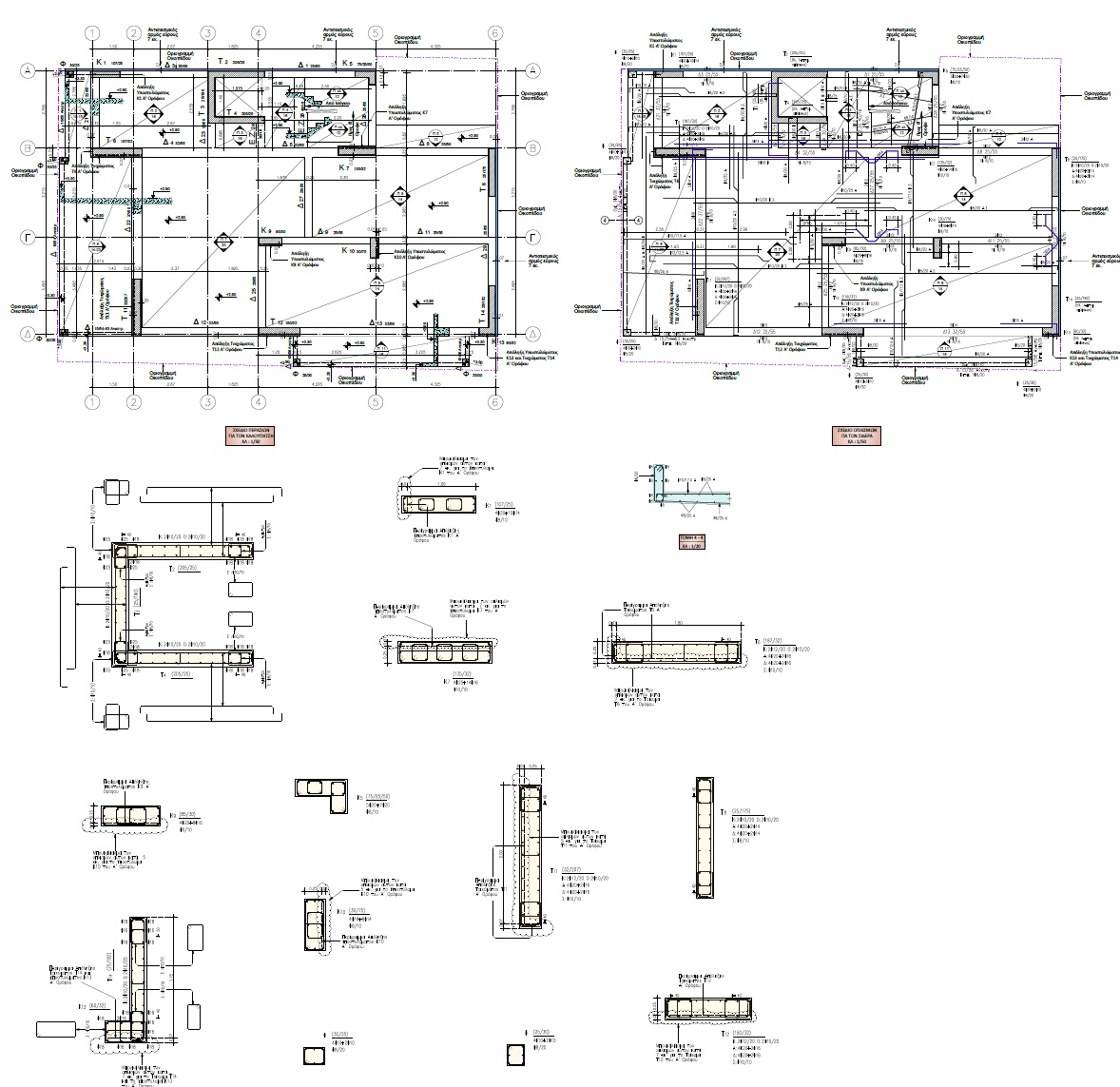
Η μελέτη αφορά την ανέγερση του Φέροντος Οργανισμού από οπλισμένο σκυρόδεμα νέας τριόροφης πολυκατοικίας με πυλωτή και υπόγειο, στα Ανω Πετράλωνα Αττικής. Η θεμελίωση του κτιρίου γίνεται με πλάκα γενικής κοιτόστρωσης.
Για την μελέτη και διαστασιολόγηση της πλάκας γενικής κοιτόστρωσης, έγινε ιδιαίτερη πρόσθετη ανάλυση με μόρφωση της πλάκας αυτής από πεπερασμένα στοιχεία (finite elements), χρησιμοποιήθηκε δε το πρόγραμμα Η/Υ SAP2000. Η ενδοτικότητα του εδάφους ελήφθη υπόψη με εισαγωγή συγκεντρωμένων ελατηρίων ανά κόμβο, με σταθερά αυτή που αντιστοιχεί στο εμβαδόν επιρροής του κόμβου. Προκειμένου το μοντέλο να είναι ακόμη πιο ρεαλιστικό, επίσης με πεπερασμένα στοιχεία εδόθησαν και τα περιμετρικά τοιχώματα του υπογείου, ούτως ώστε να αναπαραστηθεί με ακόμη μεγαλύτερη ακρίβεια η διαφραγματική λειτουργία των τοιχωμάτων αυτών εντός του κατακόρυφου επιπέδου τους καθώς και η μερική πάκτωση που επιβάλλουν στην πλάκα γενικής κοιτόστρωσης, όταν αυτή συστρέφεται λόγω της βύθισής της από τα φορτία των τοιχωμάτων αυτών.














