ΨΥΧΙΚΟ – ΜΟΝΟΚΑΤΟΙΚΙΑ
Περιγραφή έργου

Εργοδότης : Ιδιώτης

Έτος Μελέτης : 2019

Ετος Κατασκευής : 2020 – 2021

Κατασκευαστής : J&P – AVAX

Αρχιτεκτονική μελέτη : ELEME – Πανταζή Κατερίνα, Πανταζής Δημήτριος

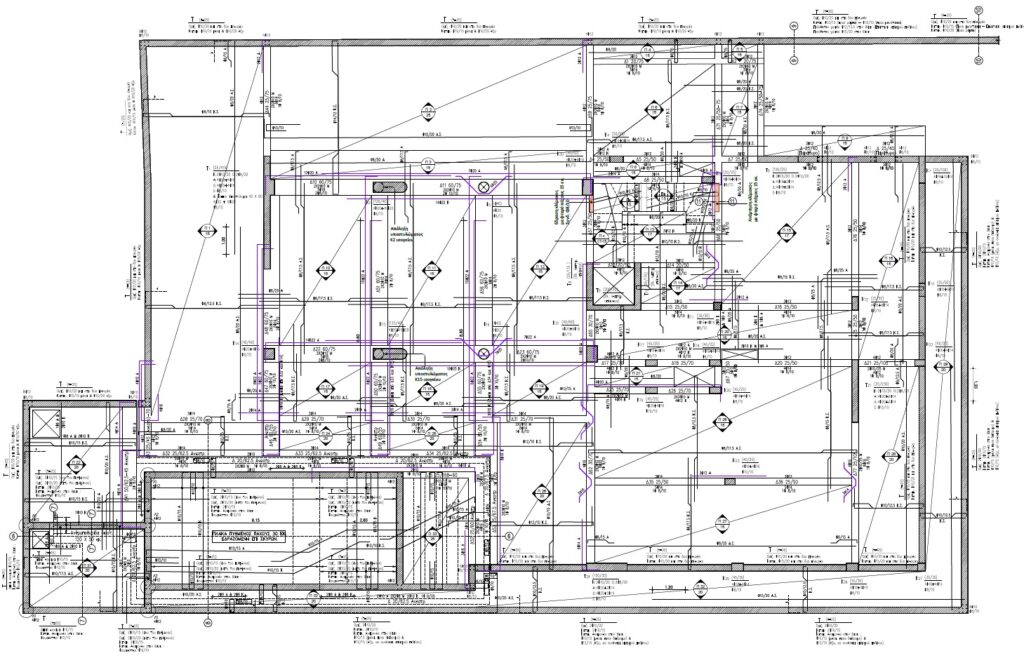
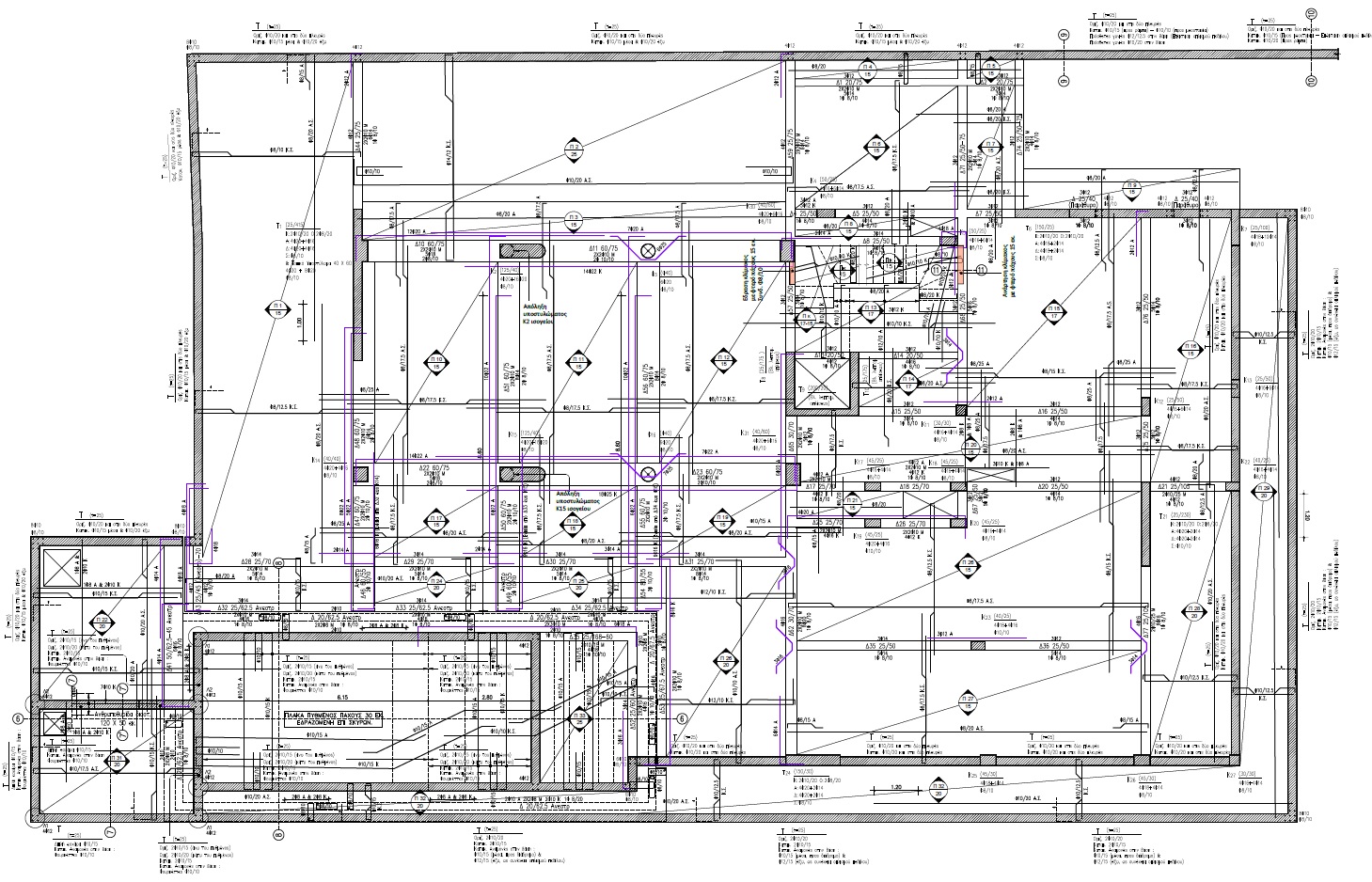
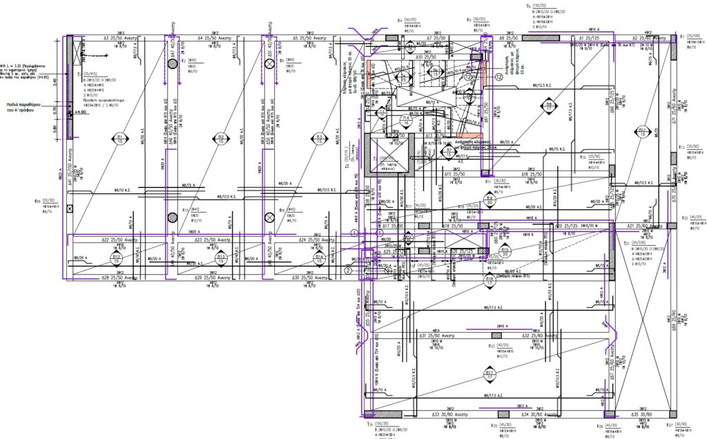
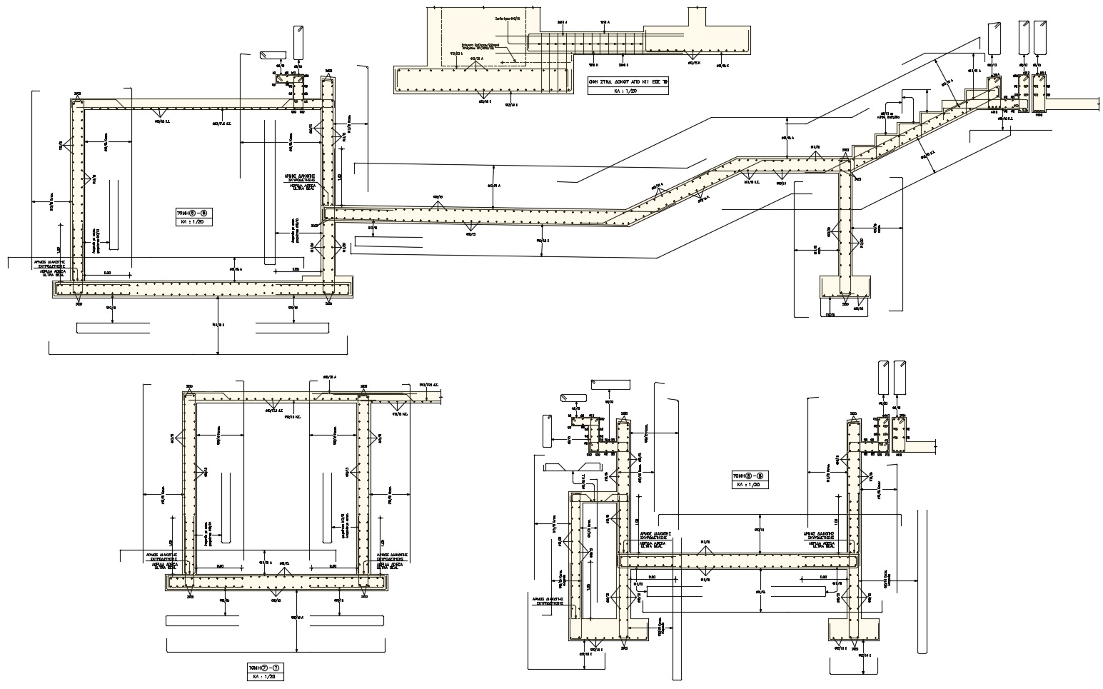
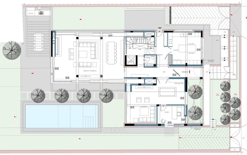
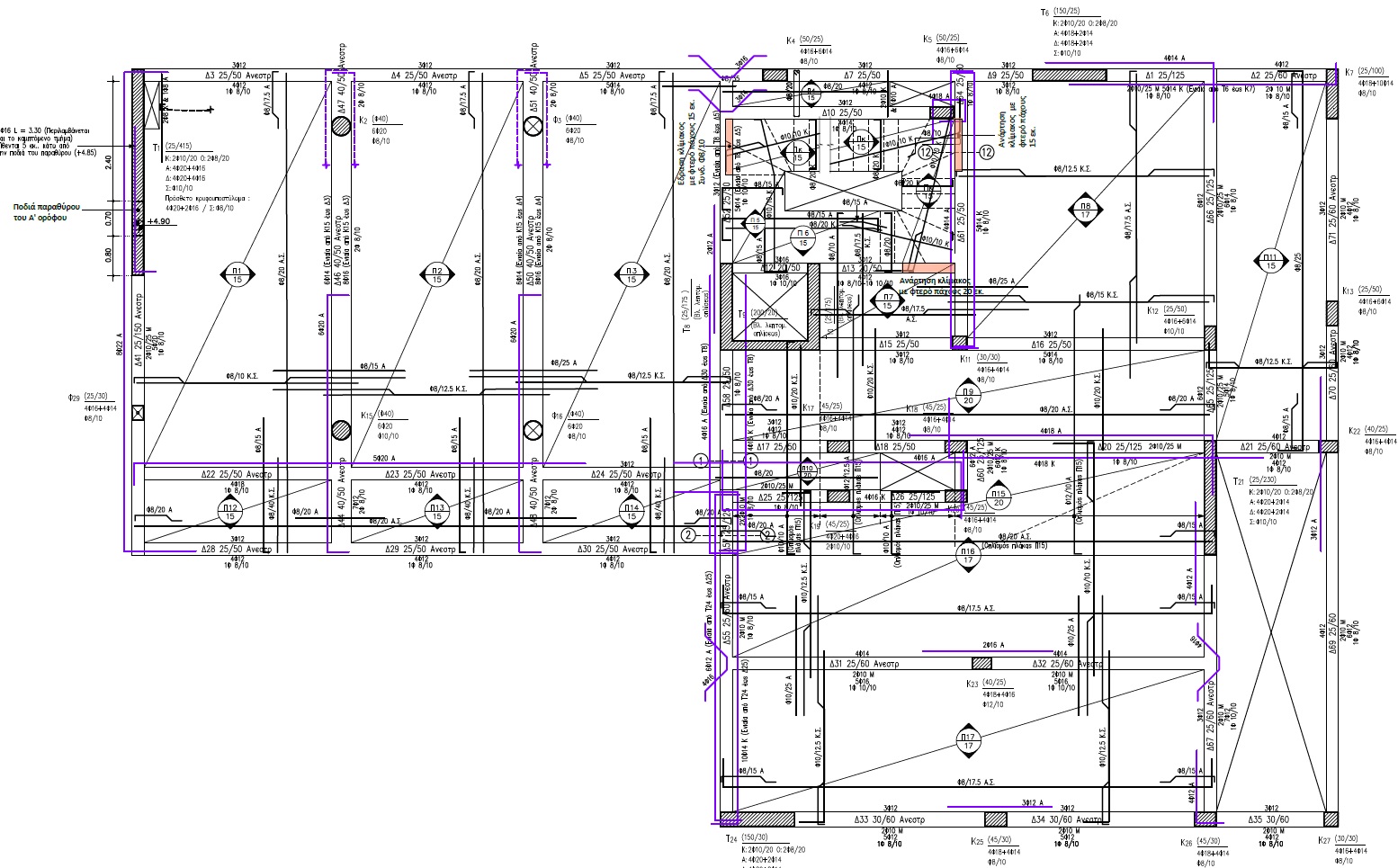
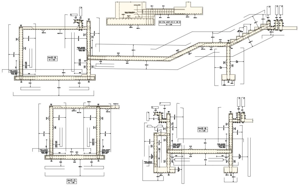
Η μελέτη αφορά μονοκατοικία αποτελούμενη από επίπεδα Υπογείου, Ισογείου και Α’ Ορόφου καθώς και κολυμβητική δεξαμενή. Η μονοκατοικία κατασκευάστηκε σε οικόπεδο στο Παλαιό Ψυχικό. Ο Φέρων Οργανισμός της είναι από οπλισμένο σκυρόδεμα.

Για την επίτευξη της αρχιτεκτονικής απαίτησης ενιαίας οροφής στο Ισόγειο, κατασκευάστηκε διπλή πλάκα στην οροφή Ισογείου. Επίσης, από τα τέσσερα κυκλικά υποστυλώματα που διαμορφώνουν την φυσιογνωμία των ισογείων χώρων υποδοχής, τα δύο φυτεύονται σε δοκούς της οροφής Υπογείου, προκειμένου να μην εμποδίζουν την διέλευση των οχημάτων. Μεγάλες δοκοί – πρόβολοι κατασκευάστηκαν στο αριστερό όριο του Ισογείου και του Α’ ορόφου, ως απόρροια των αρχιτεκτονικών απαιτήσεων (βλ. σχετικές φωτογραφίες). Τέλος, αναφέρεται ότι ο Φέρων Οργανισμός της κολυμβητικής δεξαμενής έχει κατασκευαστεί στατικά ανεξάρτητος από τους υπόλοιπους υπόγειους χώρους.

Φωτογραφικό υλικό εργου