ΝΤΡΑΦΙ – ΜΟΝΟΚΑΤΟΙΚΙΑ
Περιγραφή έργου
Εργοδότης : DCDK Κομνηνός Δημήτριος
Έτος Μελέτης : 2007
Ετος Κατασκευής : 2007 – 2008
Κατασκευαστής : DCDK Κομνηνός Δημήτριος
Αρχιτεκτονική μελέτη : Ιορδανίδη Κωνσταντία
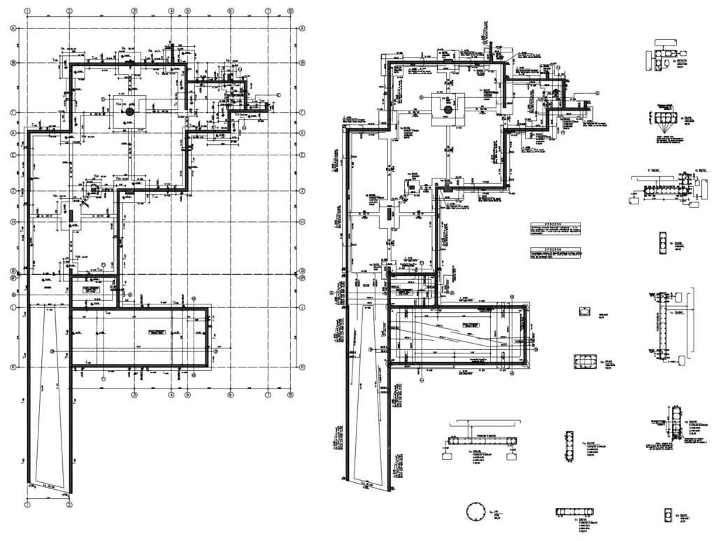
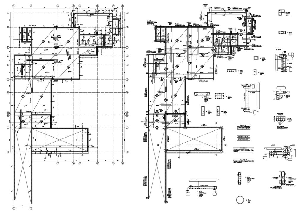
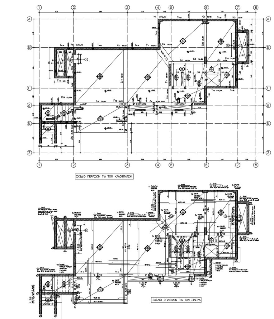
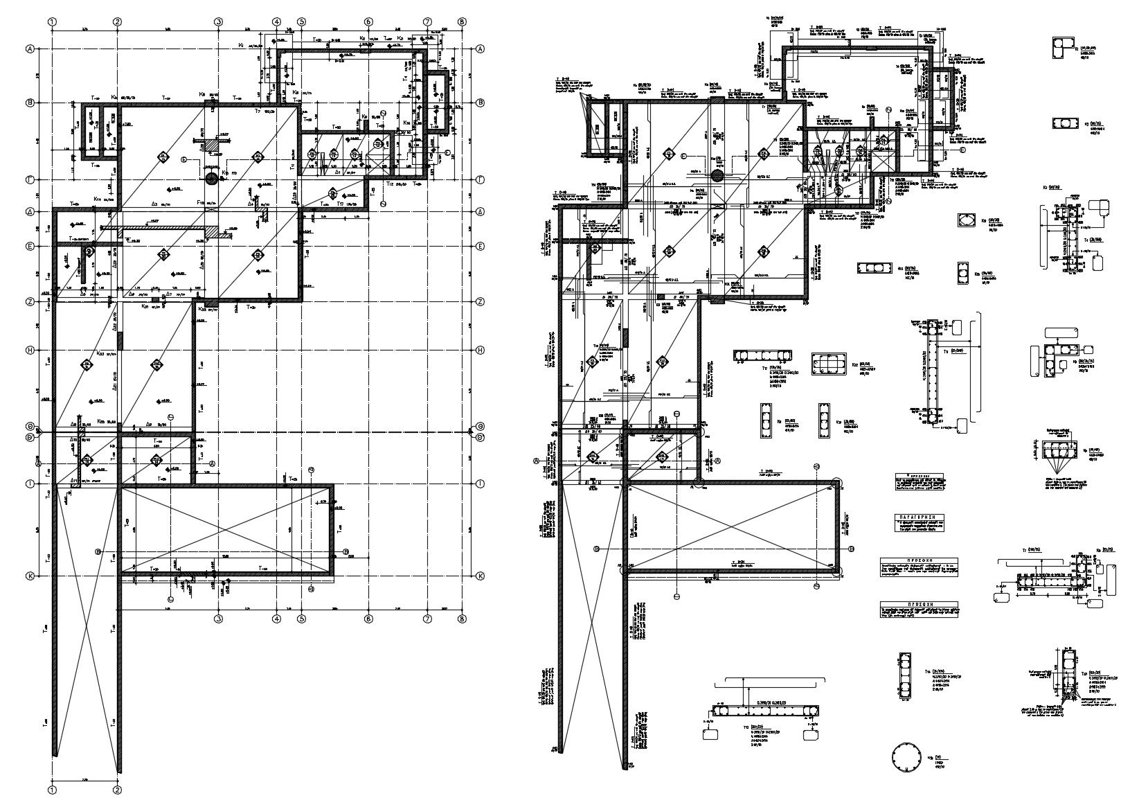
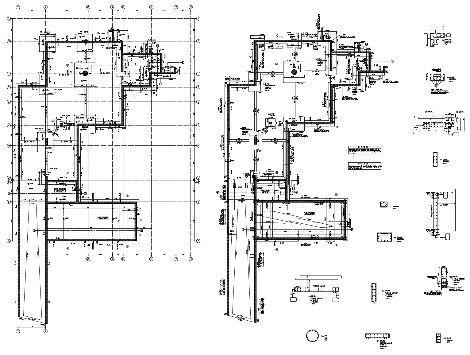
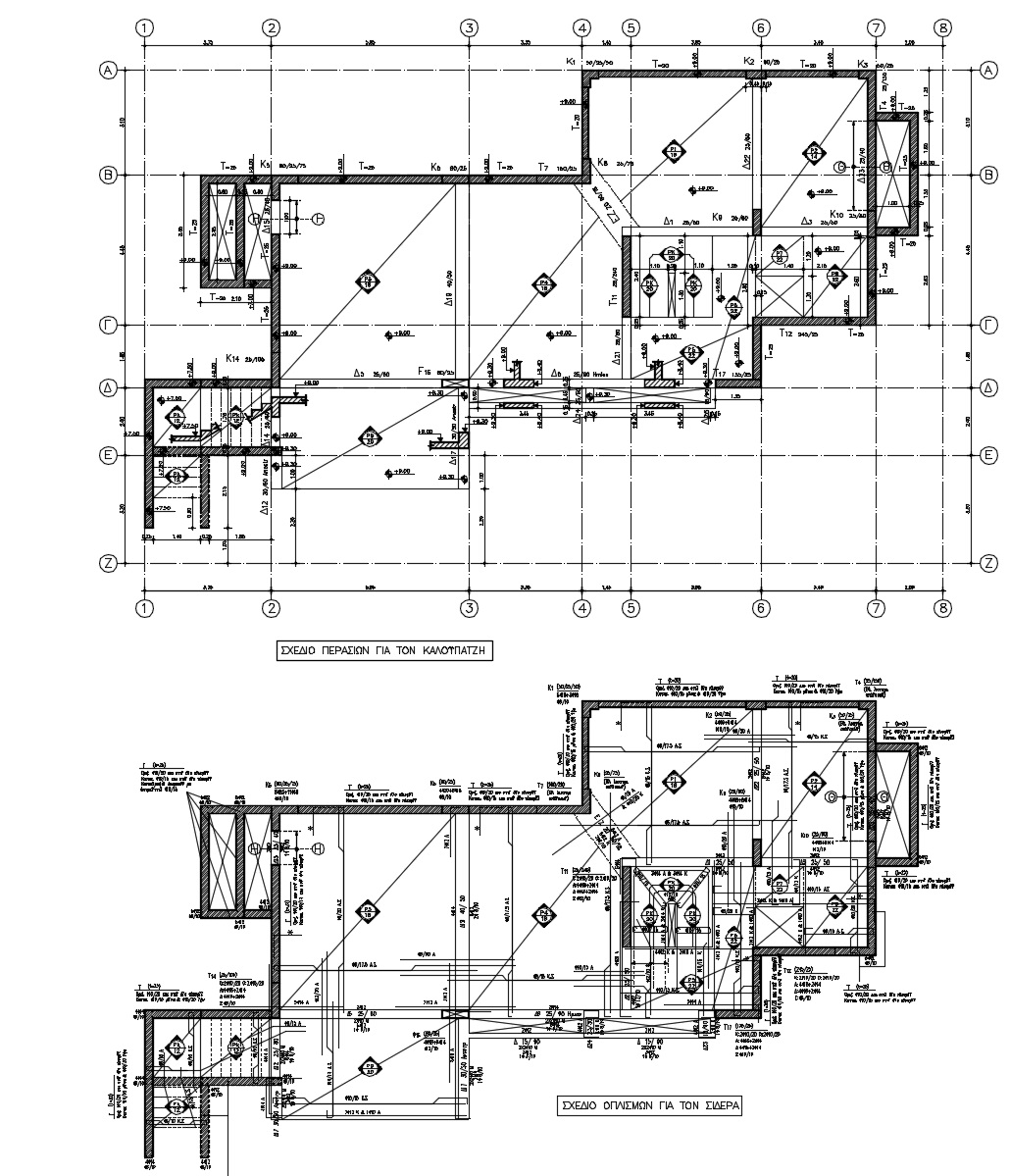
Η μελέτη αφορά τριώροφη κατοικία στον οικισμό Ντράφι – κοινότητος Πικερμίου. Ο Φέρων Οργανισμός του κτιρίου και της κολυμβητικής δεξαμενής είναι από οπλισμένο σκυρόδεμα. Ειδικά ο Φέρων Οργανισμός του πρώτου επιπέδου (με χρήση κυρίως υπογείου garage), επειδή καταλαμβάνει μεγάλη έκταση, διότι περιλαμβάνει και την κολυμβητική δεξαμενή μαζί με την δεξαμενή υπερχείλισης καθώς και τους τοίχους αντιστήριξης της ράμπας εισόδου των οχημάτων στον χώρο σταθμεύσεως, αποφασίστηκε να διαχωριστεί στατικά και κατασκευαστικά σε δύο επί μέρους ανεξάρτητους φορείς με κοινή όμως θεμελίωση. Η κάλυψη της οροφής των ανώτατων επιπέδων γίνεται με κεραμοσκεπή η οποία εδράζεται σε ξύλινα ζευκτά.

















