ΨΥΧΙΚΟ – ΜΟΝΟΚΑΤΟΙΚΙΑ
Περιγραφή έργου

Εργοδότης : Ιδιώτης

Έτος μελέτης : 2016 – 2017

Έτος κατασκευής : 2017

Κατασκευή : DCDK – Δημήτριος Κομνηνός

Αρχιτεκτονική μελέτη : Ισαρης Ρενέ

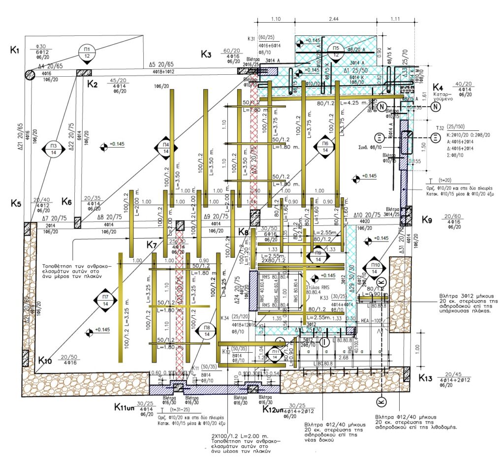
Η  μελέτη  αφορά την τροποποίηση  – επέκταση – αντισεισμική ενίσχυση του Φέροντος Οργανισμού από οπλισμένο σκυρόδεμα υπάρχοντος κτιρίου με χρήση κατοικίας. Το κτίριο ανεγέρθηκε κατά το έτος 1956, αποτελείται δε από Ισόγειο και περιορισμένης κατόψεως υπόγειο στο πίσω μέρος του. Ο Φέρων Οργανισμός του κτιρίου είναι από οπλισμένο σκυρόδεμα. Το υπόγειο, στις τρεις πλευρές του απολήγει σε λιθοδομή μεγάλου πάχους.

Η νέα αρχιτεκτονική μελέτη για το υπάρχον κτίριο αναφέρεται σε συγκεκριμένες παρεμβάσεις και προβλέψεις, οι οποίες και σαφώς επηρεάζουν και τον Φέροντα Οργανισμό του. Μεταξύ άλλων, ζητείται η προσθήκη κατ’ επέκταση στην πίσω δεξιά περιοχή του κτιρίου, η αποκοπή τμήματος του μπαλκονιού του ισογείου, η αποκοπή συγκεκριμένων δοκών ως αποτέλεσμα της νέας διαμερισμάτωσης, η ελάττωση της κρεμάσεως συγκεκριμένης δοκού στην οροφή ισογείου, η κατάργηση υφισταμένου υποστυλώματος, το οποίο δεν είναι συμβατό με την νέα αρχιτεκτονική λύση, κτλ. Επίσης, το κτίριο ενισχύθηκε αντισεισμικά με την προσθήκη νέων τοιχωμάτων οπλισμένου σκυροδέματος.

Στην παρούσα φάση εξασφαλίζεται η δημιουργία δύο ανεξάρτητων κατοικιών (η μία καταλαμβάνει το σύνολο των ισογείων χώρων και η άλλη το σύνολο των υπογείων), με πρόβλεψη όμως από τώρα για την μελλοντική λειτουργική συνένωση των δύο αυτών κατοικιών με κλιμακοστάσιο και ανελκυστήρα καθώς και η πρόβλεψη ανεγέρσεως Α’ μελλοντικού ορόφου για την ολική αξιοποίηση των διατιθέμενων τετραγωνικών, βάσει της σημερινής ισχύουσας νομοθεσίας. Στην θέση που θα κατασκευαστεί το μελλοντικό κλιμακοστάσιο και ο ανελκυστήρας, γίνεται από τώρα αποκοπή τμημάτων της υπάρχουσας πλάκας οπλισμένου σκυροδέματος οροφής υπογείου και επανα-αποκατάσταση των τμημάτων αυτών με ελαφρού τύπου μεταλλική κατασκευή με ξύλινο δάπεδο, η οποία δύναται στο μέλλον άμεσα και εύκολα να απομακρυνθεί.

Φωτογραφικό υλικό εργου