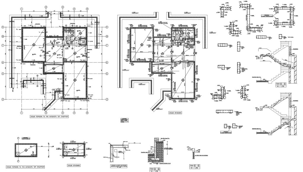
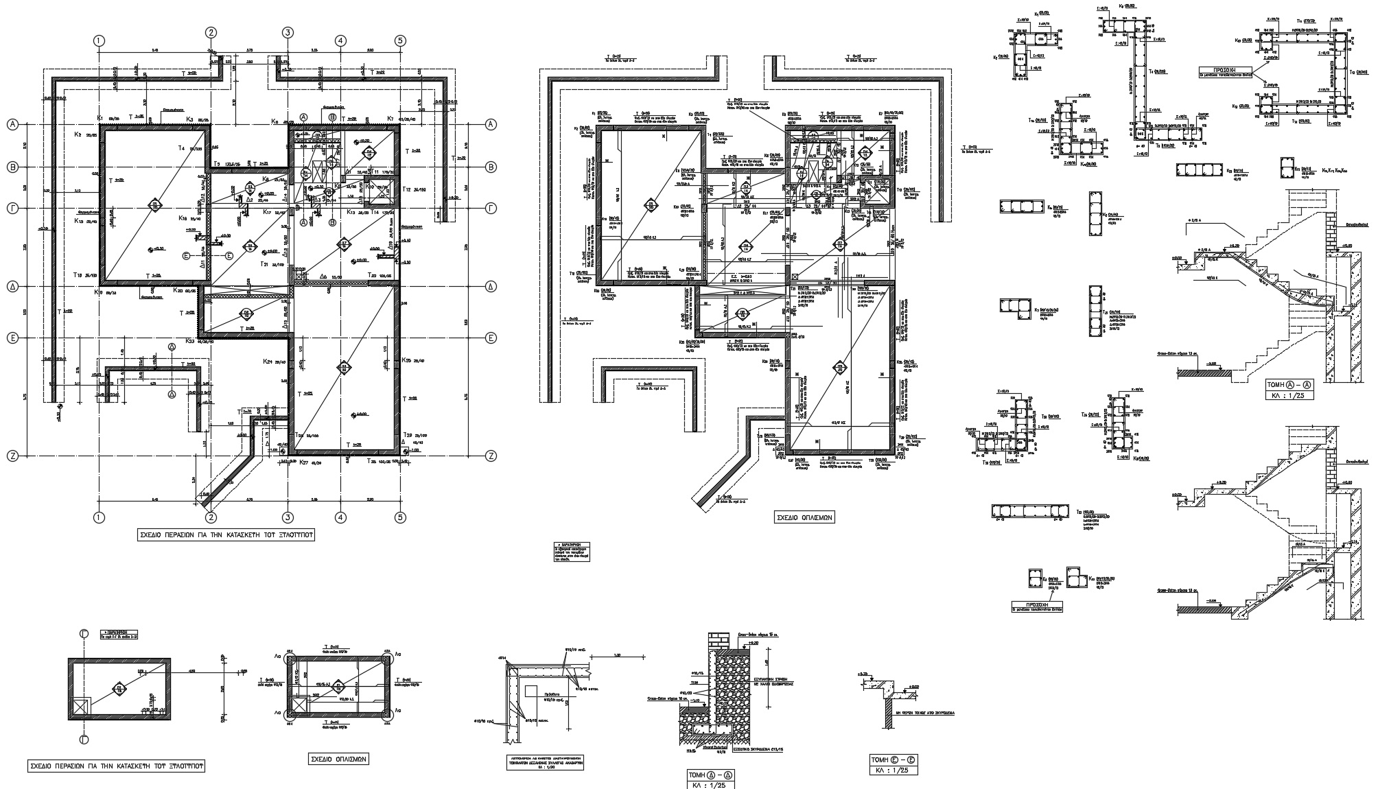
ΚΡΥΟΝΕΡΙ – ΜΟΝΟΚΑΤΟΙΚΙΑ
Περιγραφή έργου
Εργοδότης : Ιδιώτης
Έτος Μελέτης : 2002
Αρχιτεκτονική μελέτη : Αρχιτεκτονικό Γραφείο Αγαλίδη
Η μελέτη αφορά κατοικία που κατασκευάστηκε σε οικόπεδο στο Κρυονέρι Αττικής. Το κτίριο αποτελείται από Υπόγειο, Ισόγειο και Α’ Οροφο. Ο Φέρων Οργανισμός του κτιρίου είναι από οπλισμένο σκυρόδεμα.
Στην πρόσοψη του κτιρίου διατάσσεται τοξωτή δοκός.







