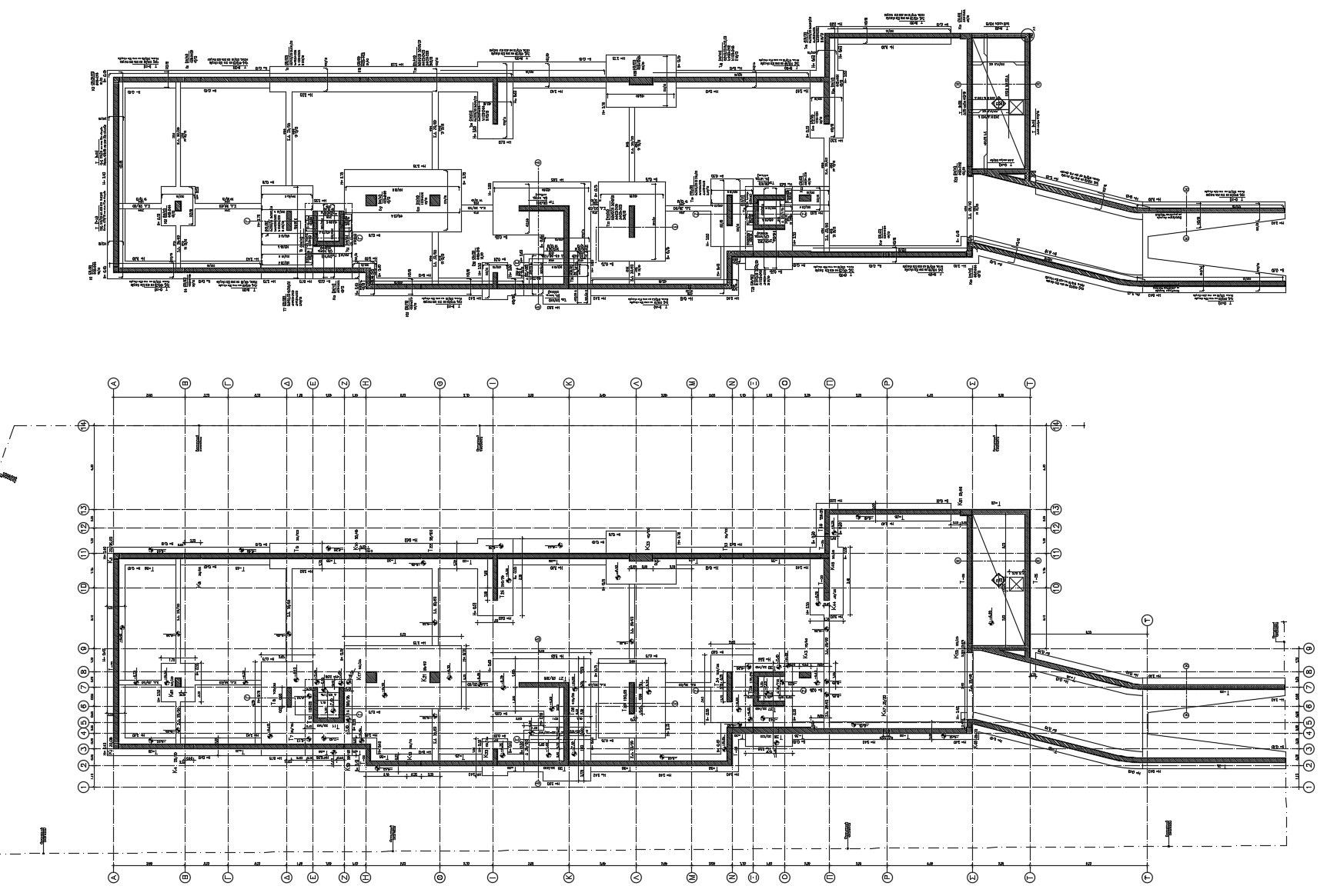
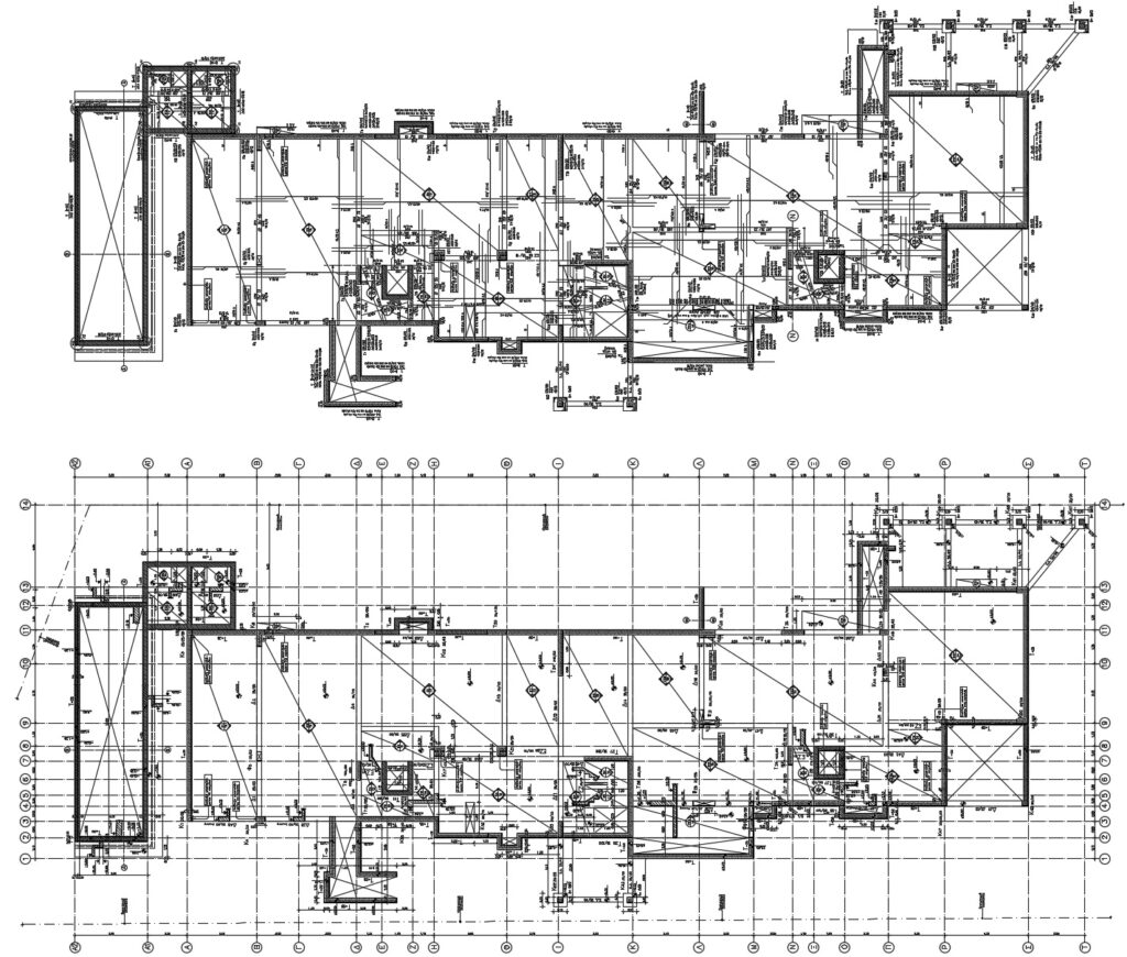
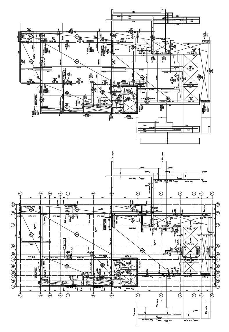
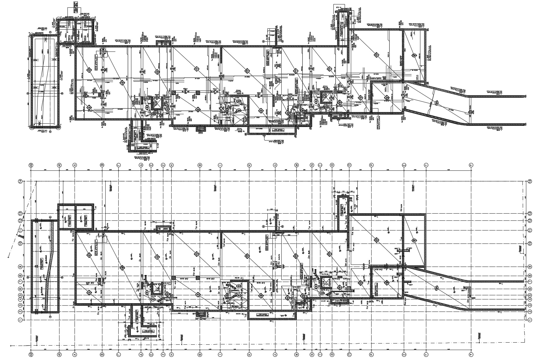
ΠΟΛΙΤΕΙΑ – ΣΥΓΚΡΟΤΗΜΑΤΑ ΚΑΤΟΙΚΙΩΝ
Περιγραφή έργου

Εργοδότης : DCDK Κομνηνός Δημήτριος

Έτος Μελέτης : 2011

Αρχιτεκτονική μελέτη : Ιορδανίδου Κωνσταντίνα

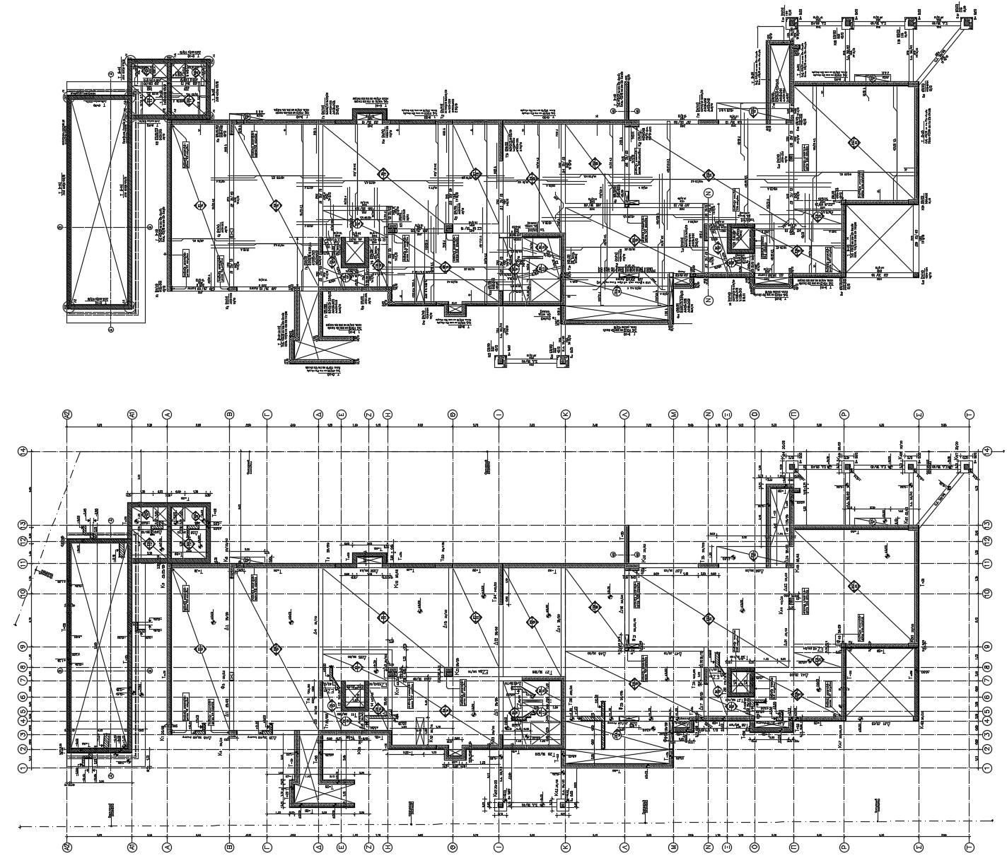
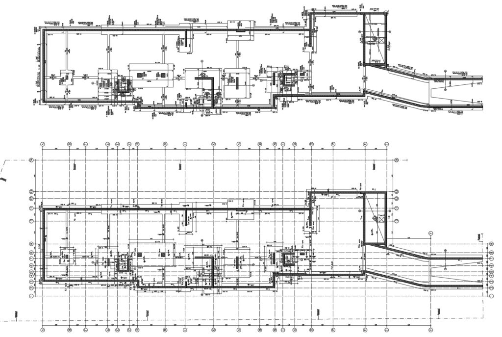
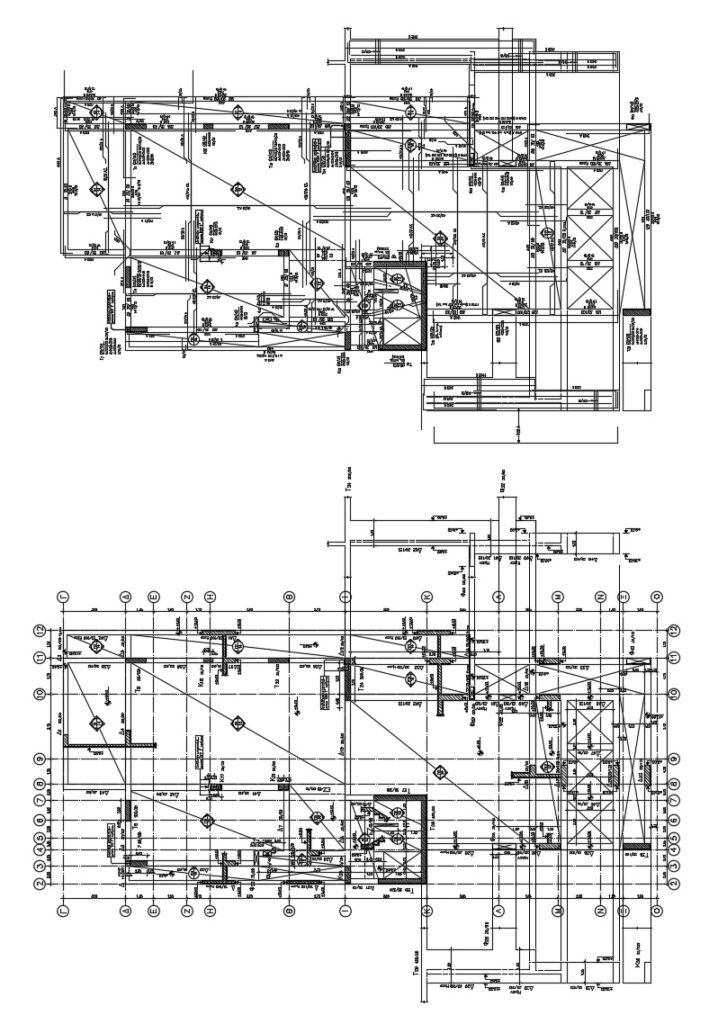
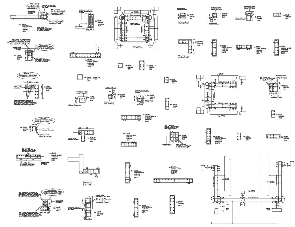
Η  μελέτη  αφορά  κτίριο συγκροτήματος κατοικιών στην Νέα Ερυθραία Αττικής. Το κτίριο αποτελείται από δύο υπόγεια, ισόγειο και Α’ και Β’ όροφο. Εντός του οικοπέδου υπάρχει κολυμβητική δεξαμενή. Ο  Φέρων Οργανισμός  του κτιρίου, της κολυμβητικής δεξαμενής και των τοιχωμάτων αντιστήριξης του περιβάλλοντος χώρου είναι από   οπλισμένο  σκυρόδεμα.

Φωτογραφικό υλικό εργου