ΝΕΟ ΨΥΧΙΚΟ – ΠΟΛΥΚΑΤΟΙΚΙΑ
Περιγραφή έργου
Εργοδότης : Ιδιώτης
Έτος Μελέτης : 2020
Αρχιτεκτονική μελέτη : KIPSELI ARCHITECTS – Μαριολοπούλου Κίρκη, Ρωμανάς Ηλίας
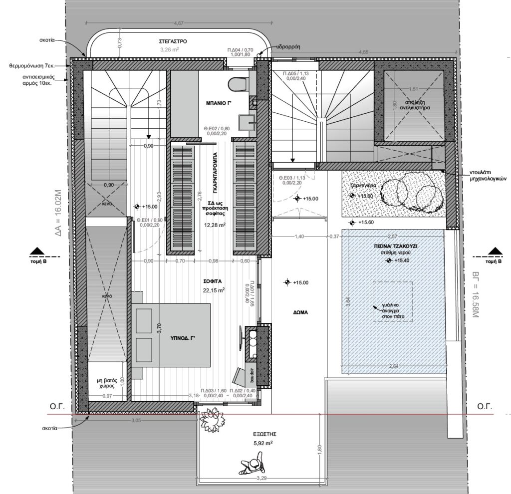
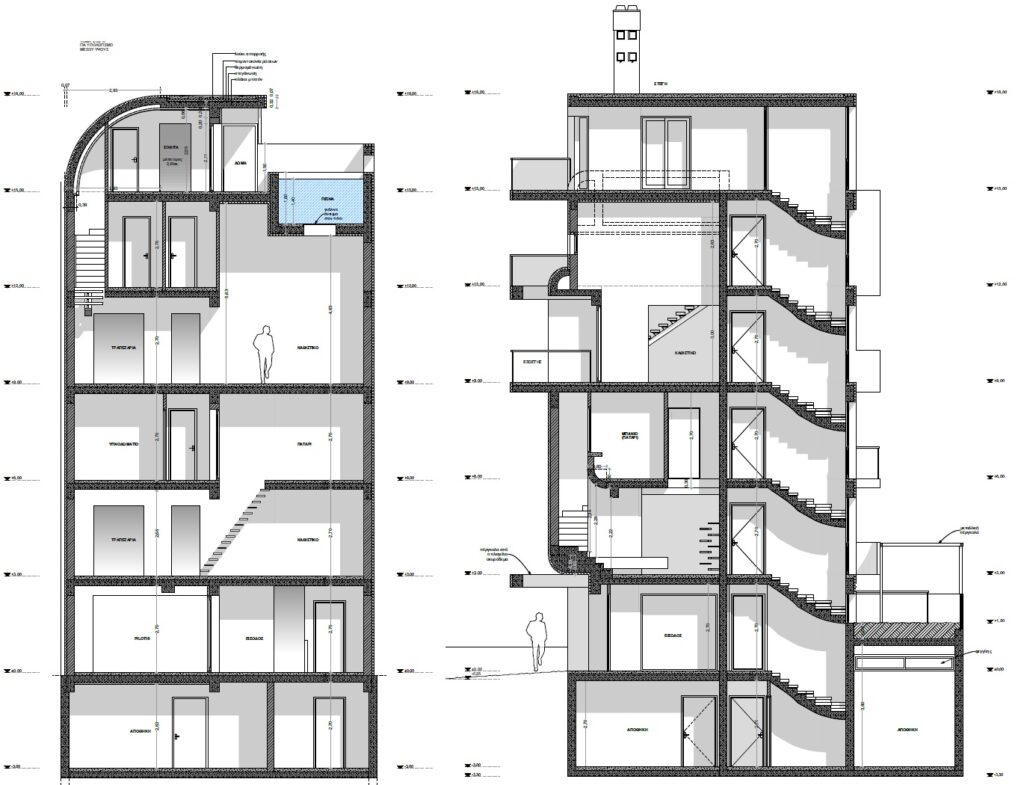
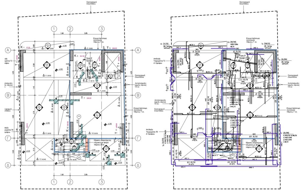
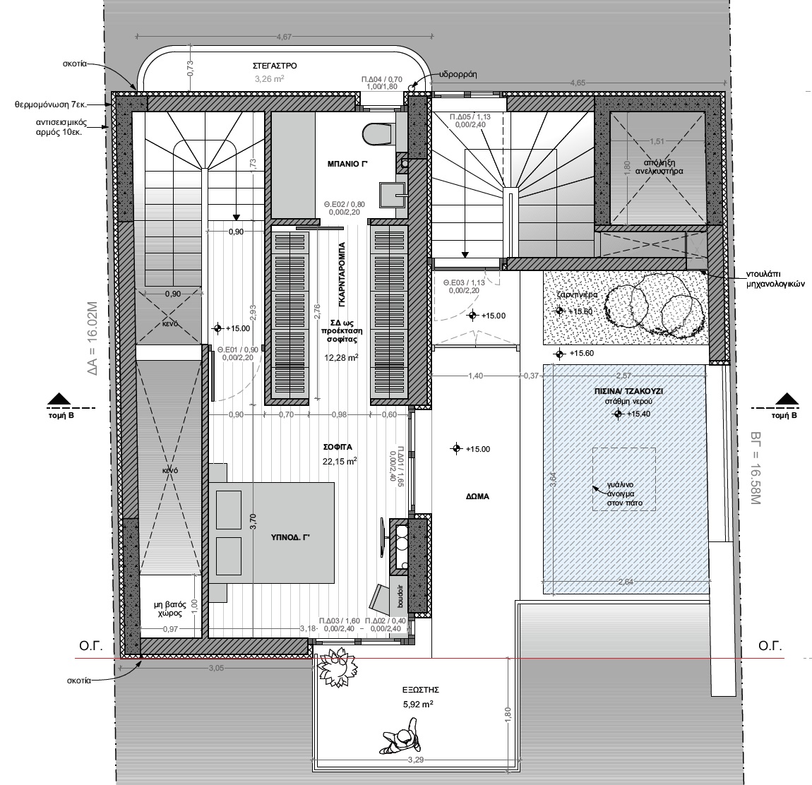
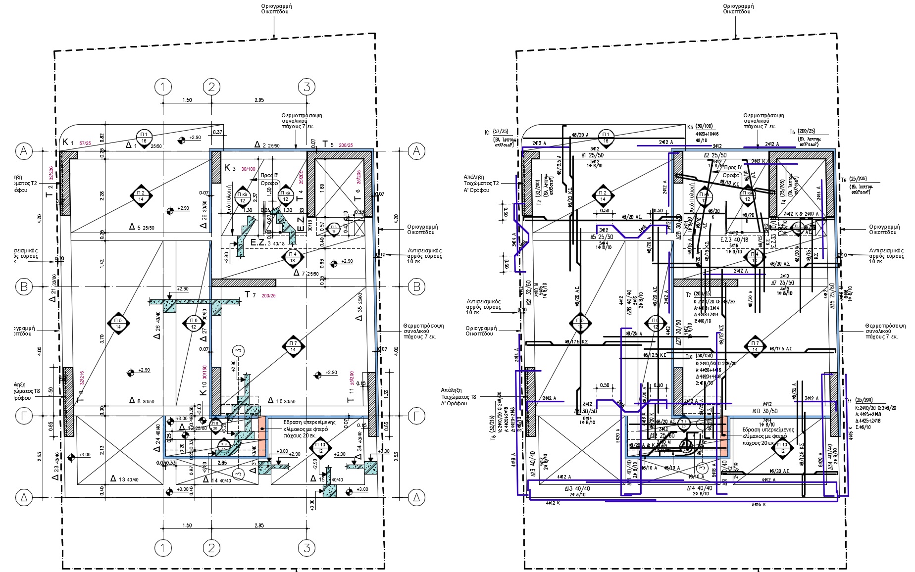
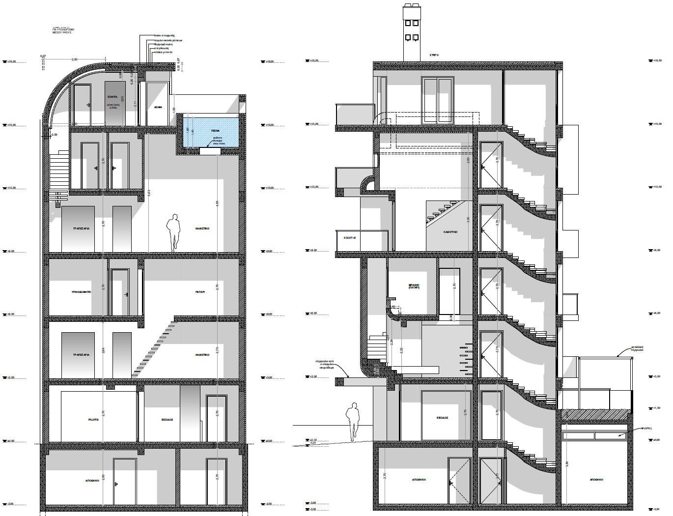
Η μελέτη αφορά την ανέγερση του Φέροντος Οργανισμού πενταώροφης πολυκατοικίας με πυλωτή και υπόγειο, στο Νέο Ψυχικό. Στον Ε’ Οροφο, προβλέπεται η κατασκευή κολυμβητικής δεξαμενής. Ο Φέρων Οργανισμός του κτιρίου είναι από οπλισμένο σκυρόδεμα. Προβλέφθηκαν οι κατάλληλοι αντισεισμικοί αρμοί σε σχέση με τα όμορα κατασκευασμένα κτίρια.












