ΝΕΟ ΨΥΧΙΚΟ – ΣΤΑΤΙΚΗ ΕΝΙΣΧΥΣΗ ΚΤΙΡΙΟΥ ΛΟΓΩ ΠΡΟΣΘΗΚΗΣ ΟΡΟΦΩΝ
Περιγραφή έργου
Εργοδότης : Ιδιώτης
Έτος μελέτης : 2019 – 2020
Έτος κατασκευής : 2020 – 2021
Αρχιτεκτονική μελέτη : Φωτιάδης Φιλλιπος
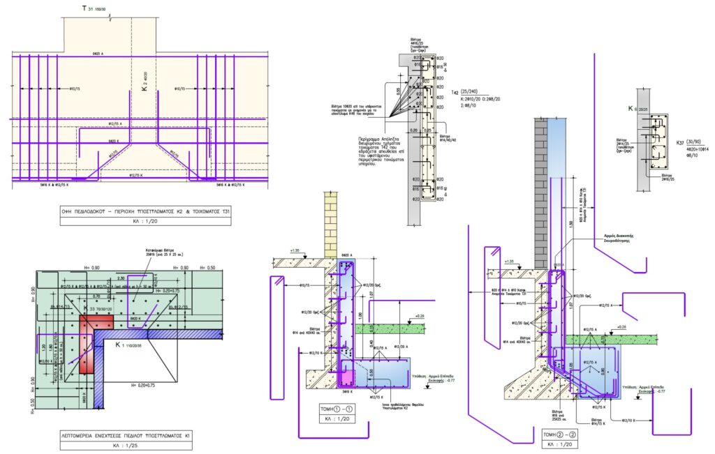
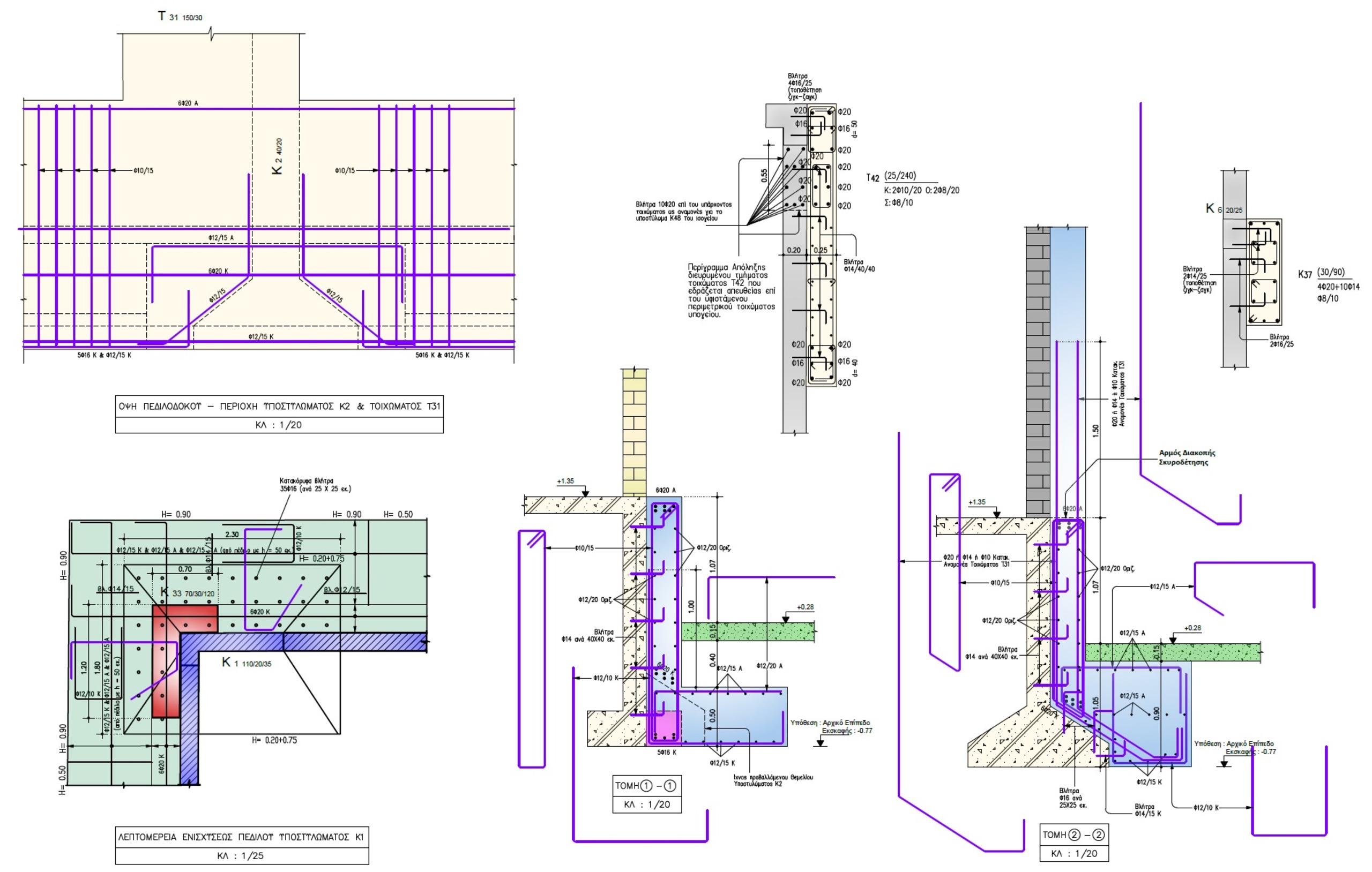
Το κτίριο στην αρχική του μορφή, κατασκευάστηκε την δεκαετία του 70 και έφερε χώρους ισογείου, 1ου ορόφου, δώματος και περιορισμένης κατόψεως υπόγειο. Η καθ’ ύψος προσθήκη αφορά τον 2ο και τον 3ο όροφο, των οποίων τα περιγράμματα λόγω εφαρμογής της ελάχιστης απόστασης Δ, δεν ταυτίζονται με το περίγραμμα των υφισταμένων ορόφων αλλά έχουν μετατοπιστεί προς το εσωτερικό αυτού. Στην οροφή του 3ου ορόφου προβλέπεται φύτευση με κηπευτικό χώμα. Η όλη μεθοδολογία που ακολουθήθηκε κατά τον σχεδιασμό της προσθήκης, αποσκοπεί στο να μην επιβαρυνθεί ο υπάρχων σκελετός του κτιρίου με πρόσθετα φορτία. Για τον λόγο αυτόν, ακολουθήθηκε η λογική του να παραλαμβάνονται τα νέα φορτία με την κατασκευή νέων πλαισίων εξ’ υποστυλωμάτων, τοιχωμάτων και δοκών πλάτους έως 30 εκ., που θα διαταχθούν στην εξωτερική περίμετρο του υπάρχοντος κτιρίου και εν επαφή με αυτό, σύμφωνα με την δυνατότητα που δίδεται από τον Ν.Ο.Κ. (άρθρο 23) για περιπτώσεις εξωτερικής ενίσχυσης κτιρίων. Τα νέα αυτά κατακόρυφα εξωτερικά στοιχεία απολήγουν στην ανώτατη στάθμη του αρχικού κτιρίου, δηλαδή στην οροφή του 1ου ορόφου. Επιπροσθέτως, τοποθετήθηκαν εσωτερικά δύο νέα υποστυλώματα και ένα τοίχωμα, στοιχεία που επιλέχθηκαν σκοπίμως εντός του περιγράμματος του υπογείου, ώστε να θεμελιωθούν με κοινό πέδιλο (ενιαία πλάκα κοιτόστρωσης) κάτω από το δάπεδο του υπογείου. Τα στοιχεία αυτά ανήλθαν έως την οροφή του υπάρχοντος κτιρίου «διερχόμενα» μέσα από το εσωτερικό του αρχικού κτιρίου. Από την στάθμη δαπέδου του 2ου ορόφου και άνω, όλα σχεδόν τα περιμετρικά υποστυλώματα της προσθήκης είναι φυτευτά, με την έδρασή τους να γίνεται επί ισχυρών δοκών που κατασκευάστηκαν στην παλαιά ανώτατη στάθμη του κτιρίου (πλάκα οροφής 1ου ορόφου).




























