ΜΑΡΟΥΣΙ – ΜΟΝΟΚΑΤΟΙΚΙΑ
Περιγραφή έργου
Εργοδότης : BERIOS S.A. Κατασκευαστική Εταιρεία
Έτος Μελέτης : 2020 – 2021
Κατασκευαστής : BERIOS S.A. Κατασκευαστική Εταιρεία
Αρχιτεκτονική μελέτη : Αμπατζόγλου Γεωργία, Αρχιτέκτων ΕΜΠ
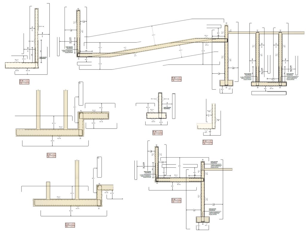
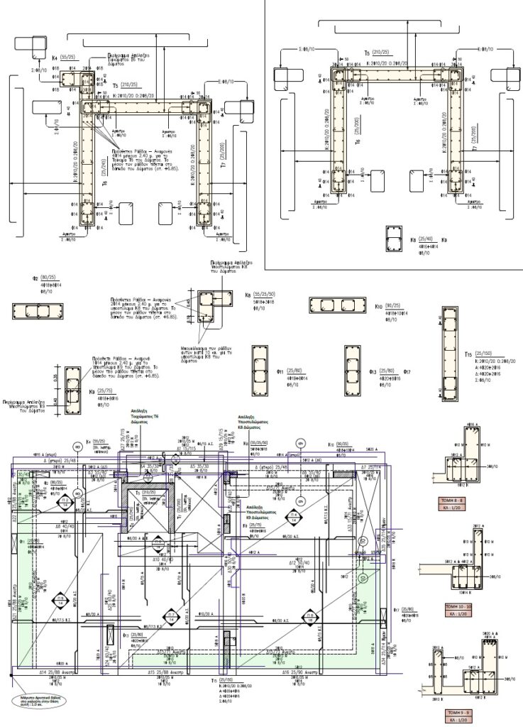
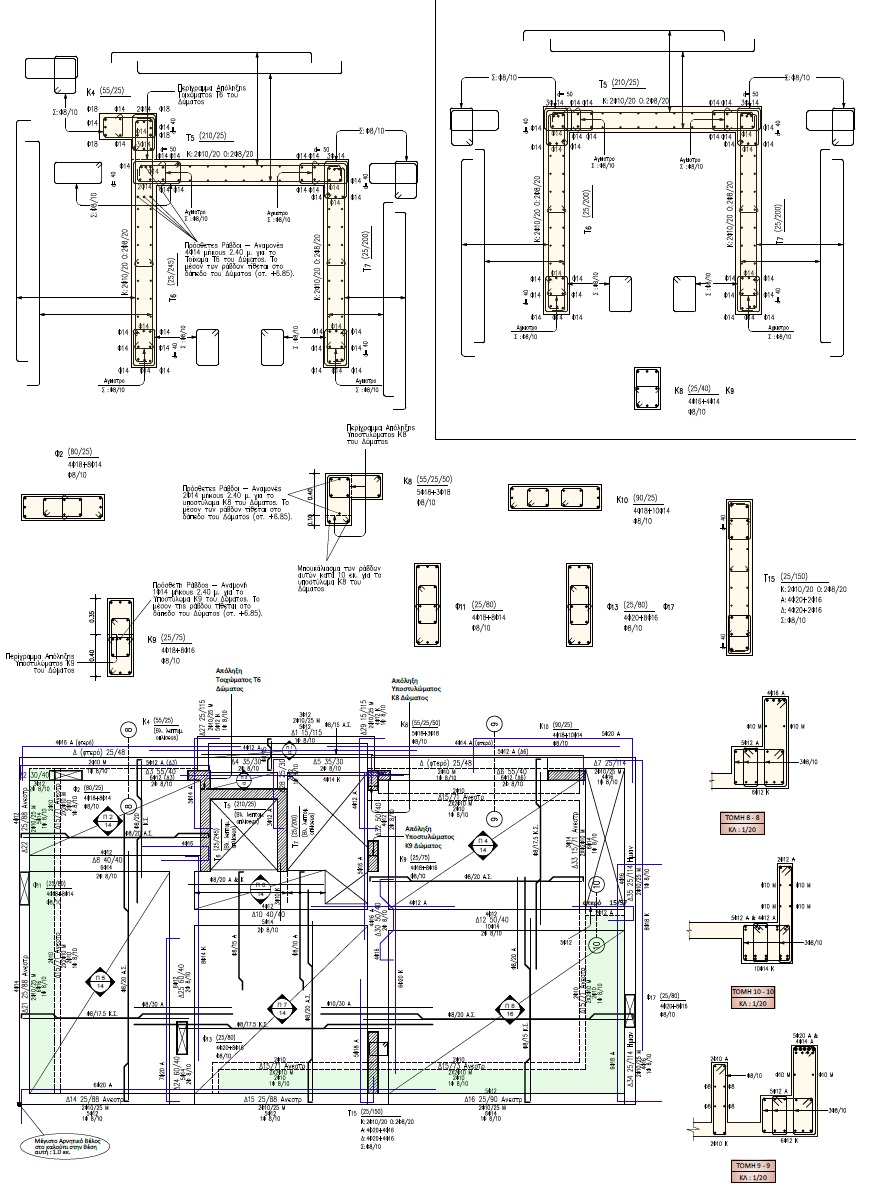
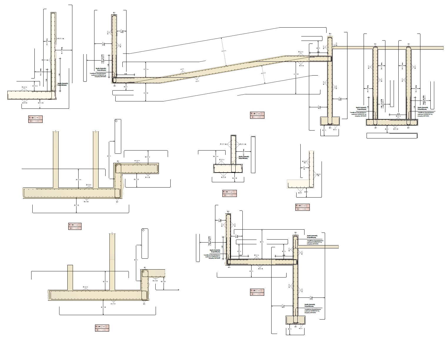
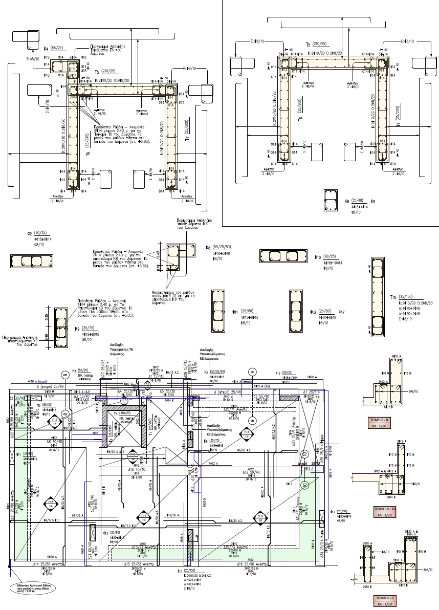
Η μελέτη αφορά κτίριο μονοκατοικίας, αποτελούμενο από Ισόγειο, Α΄ Οροφο και Υπόγειο. Ο Φέρων Οργανισμός του κτιρίου είναι από οπλισμένο σκυρόδεμα. Αξιοσημείωτο είναι ότι σε συγκεκριμένες θέσεις στην μπροστινή και στις πλαϊνές πλευρές του κτιρίου, τα υποστυλώματα διατάσσονται σε μεγάλη υποχώρηση από την περίμετρο, οπότε και δημιουργούνται δοκοί – πρόβολοι μεγάλου μήκους (έως 5.0 μ. απόσταση περιμέτρου κτιρίου από πλησιέστερο υποστύλωμα), για τις οποίες η μελέτη προβλέπει αρνητικό βέλος κατά την κατασκευή



















