ΒΟΥΛΑ – ΣΥΓΚΡΟΤΗΜΑ ΚΑΤΟΙΚΙΩΝ
Περιγραφή έργου

Εργοδότης : Ιδιώτες

Έτος Μελέτης : 2007

Συντονιστής Μελέτης : Θεοδοσίου Γκίκας

Ετος Κατασκευής : 2007 – 2008

Αρχιτεκτονική μελέτη : Ρώσσης Νικόλαος

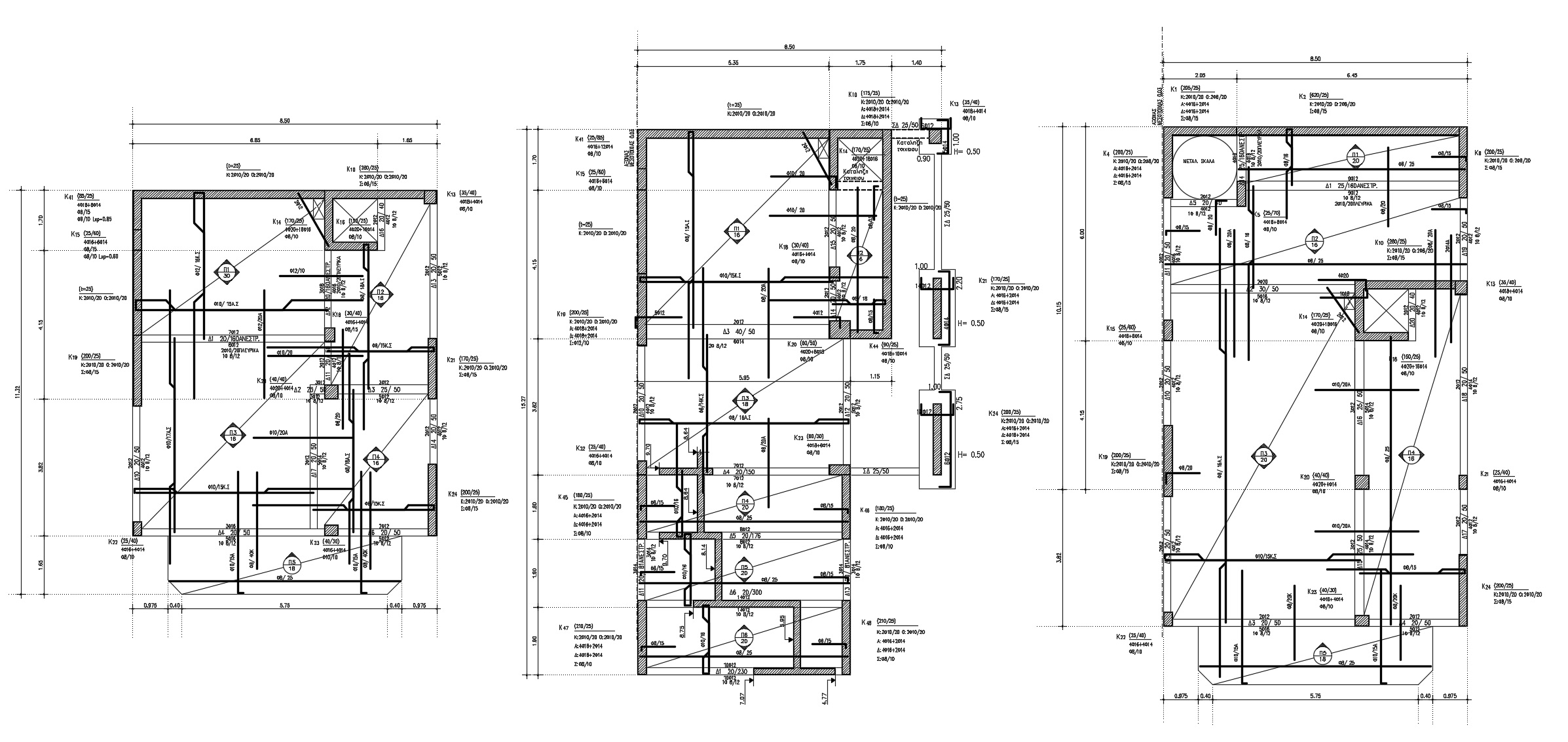
Η μελέτη αφορά την ανέγερση του Φέροντος Οργανισμού από οπλισμένο σκυρόδεμα νέου τριώροφου συγκροτήματος κατοικιών με υπόγεια και στέγη που κατασκευάστηκε σε εντόνως επικλινές οικόπεδο, στην Ανω Βούλα. Συνολικά, στο κτίριο υπάρχουν 6 επίπεδα:

Το πρώτο επίπεδο (υπόγειο garage) φιλοξενεί το χώρο στάθμευσης και το λεβητοστάσιο. Το δεύτερο επίπεδο (υπόγειο) φιλοξενεί βοηθητικές χρήσεις. Το τρίτο επίπεδο (ισόγειο) φιλοξενεί κύριες χρήσεις. Το τέταρτο επίπεδο (Α΄όροφος) φιλοξενεί εν μέρει κύριες και εν μέρει βοηθητικές χρήσεις (τις δεύτερες στο υπόγειο τμήμα του). Τα τελευταία δύο επίπεδα (Β΄και Γ΄όροφοι) φιλοξενούν κύριες χρήσεις.

Λόγω της έντονης κλίσης του εδάφους, η θεμελίωση του κτιρίου γίνεται ανισόσταθμα, σε δύο επίπεδα. Επίσης, προκύπτουν εσωτερικοί χώροι, οι οποίοι δεν ανήκουν στην δόμηση και συνεπώς επιχώθηκαν. Περιμετρικά σε κάθε όροφο, όπου συναντάται το κατακόρυφο πρανές της εκσκαφής, για λόγους οικονομίας, δεν γίνεται καθολική αλλά μερική κατά περίπτωση επένδυση με οπλισμένο σκυρόδεμα, ακριβώς λόγω του συμπαγούς βραχώδους εδάφους επί του οποίου κατασκευάζεται το έργο και το οποίο (έδαφος) εκτιμάται ότι δεν θα δώσει οριζόντιες ωθήσεις σε καμία στάθμη. Η επένδυση αυτή έχει αυξηθεί στην κατώτερη στάθμη (garage) ώστε να μπορεί αντισεισμικά να θεωρηθεί ως ακλόνητη η συγκεκριμένη στάθμη. Τέλος, προβλέφθηκαν οι κατάλληλοι αντισεισμικοί αρμοί σε σχέση με τα όμορα κατασκευασμένα κτίρια.

Φωτογραφικό υλικό εργου