ΠΙΚΕΡΜΙ – ΜΟΝΟΚΑΤΟΙΚΙΑ
Περιγραφή έργου
Εργοδότης : Ιδιώτης
Έτος Μελέτης : 2004
Eτος Κατασκευής : 2005 – 2006
Αρχιτεκτονική μελέτη : Αρχιτεκτονικό Γραφείο Αγαλίδη
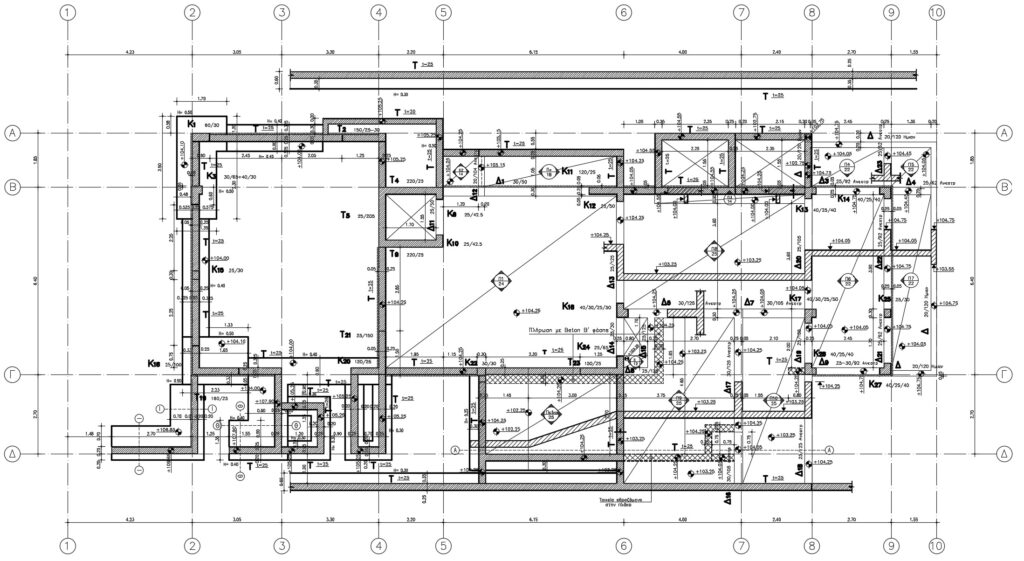
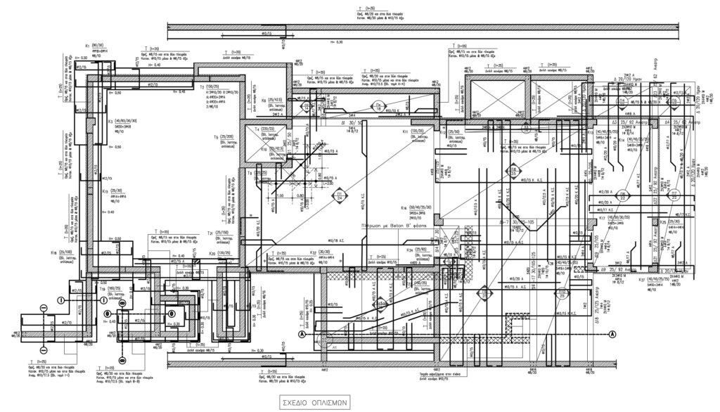
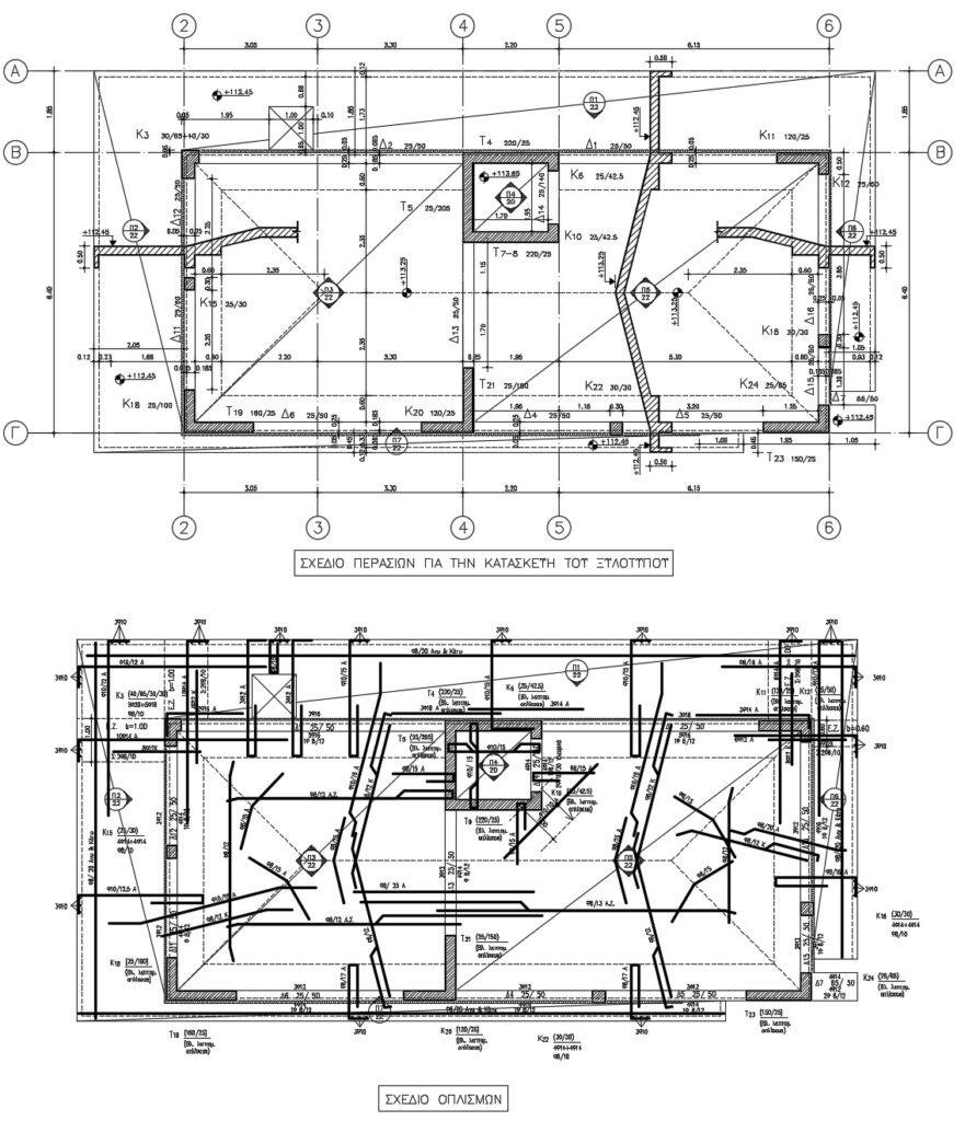
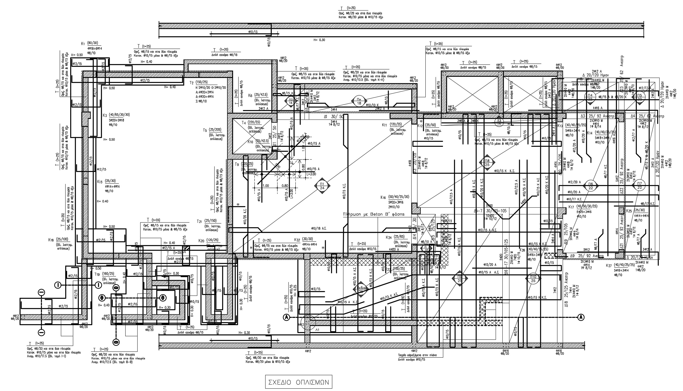
Η μελέτη αφορά την ανέγερση του Φέροντος Οργανισμού κατοικίας με τέσσερα επίπεδα (περιλαμβάνεται το Υπόγειο) και κολυμβητική δεξαμενή, που κατασκευάστηκε σε οικόπεδο στον Δήμο Πικερμίου. Ο Φέρων Οργανισμός του κτιρίου είναι από οπλισμένο σκυρόδεμα.















