ΠΕΝΤΕΛΗ – ΣΥΓΚΡΟΤΗΜΑΤΑ ΚΑΤΟΙΚΙΩΝ
Περιγραφή έργου
Εργοδότης : Ιδιώτες
Έτος Μελέτης : 2008
Aρχιτεκτονική μελέτη : Χαραλαμπόπουλος Χρήστος
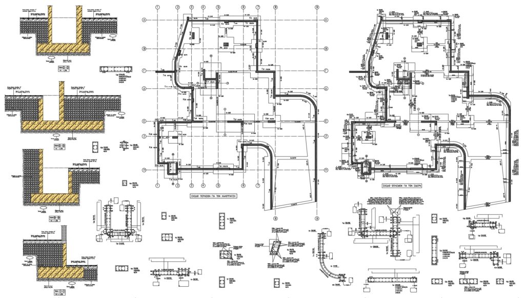
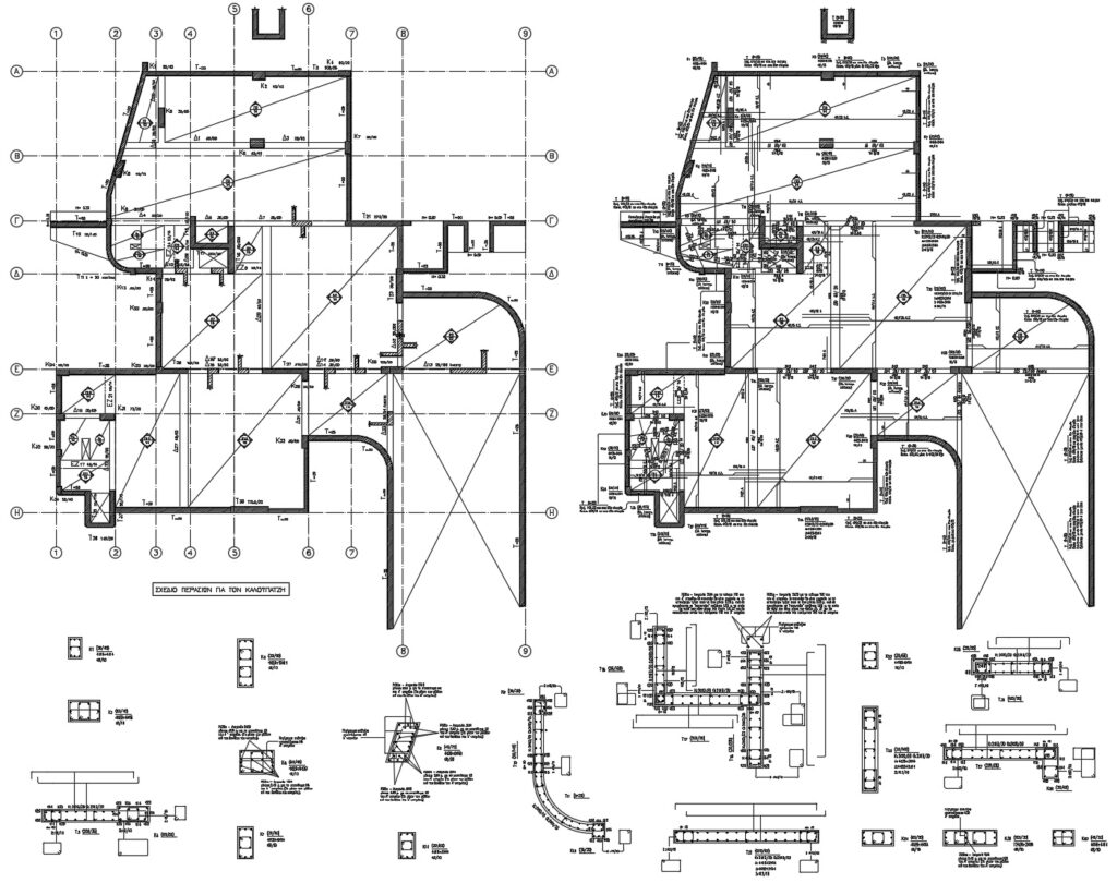
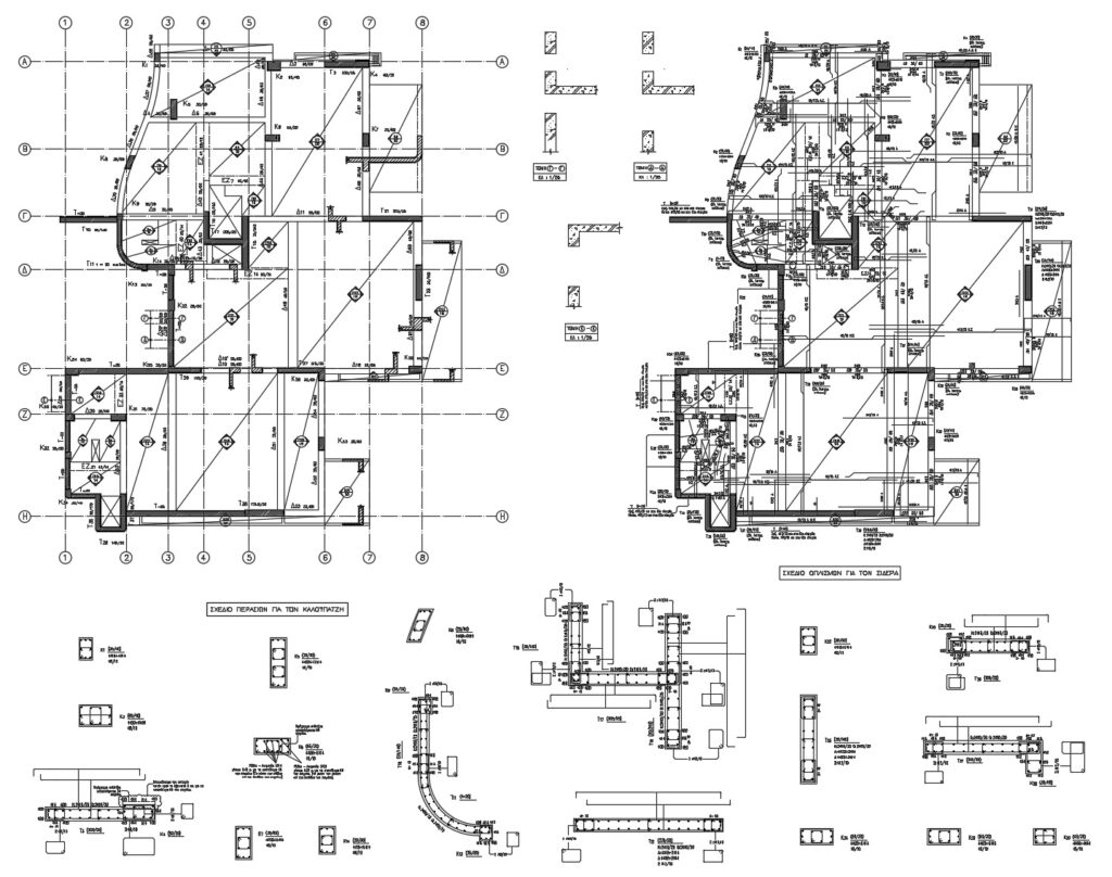
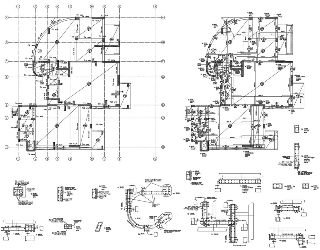
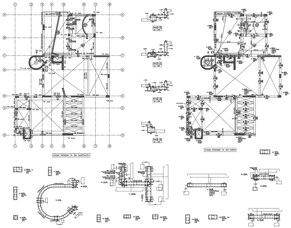
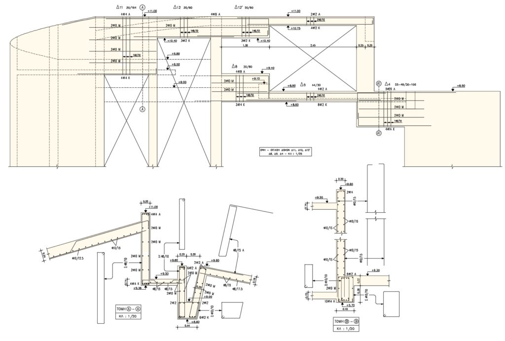
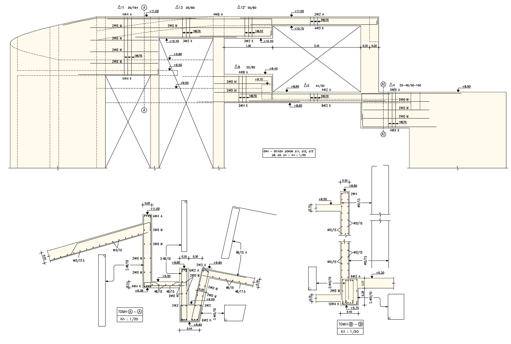
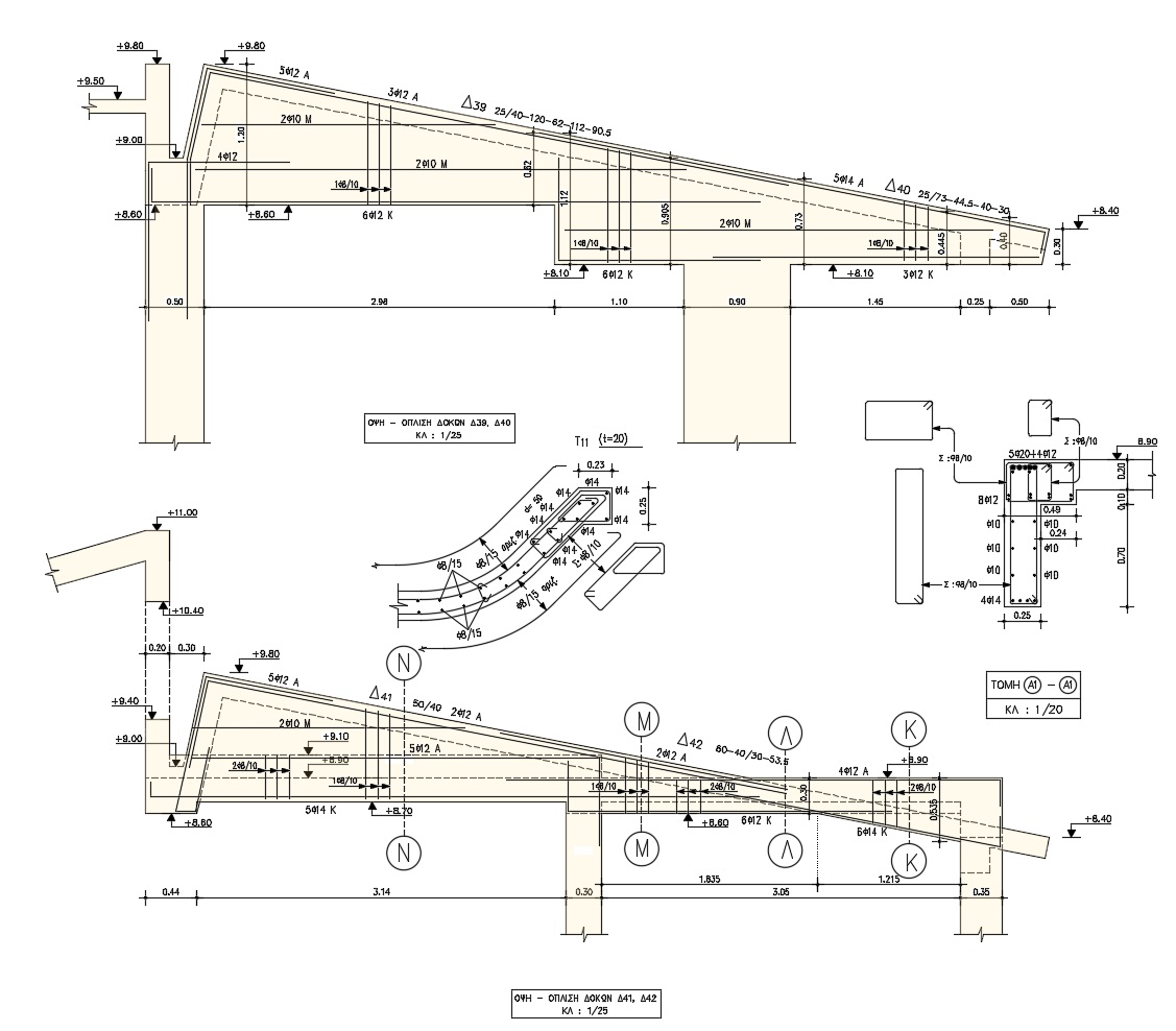
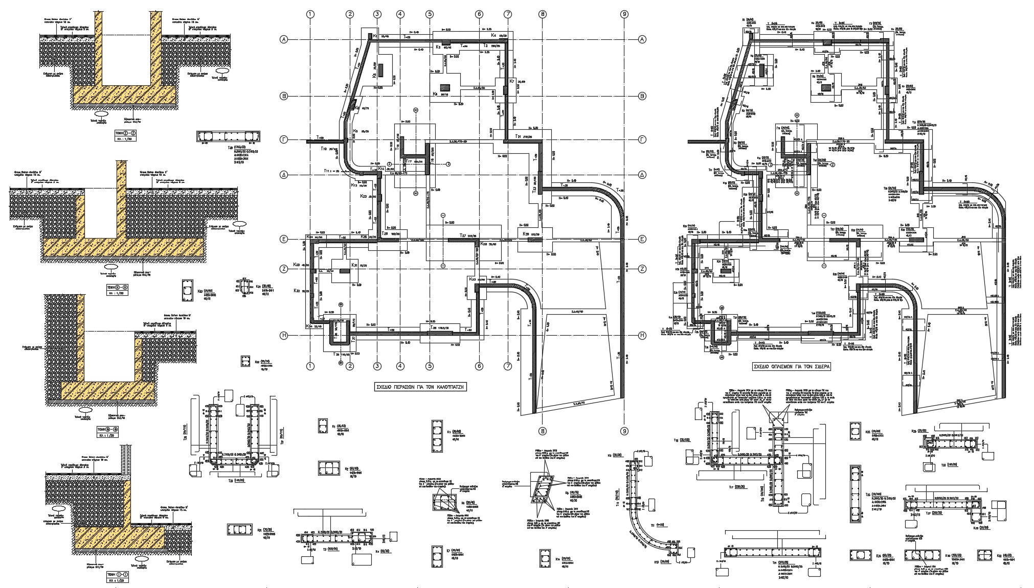
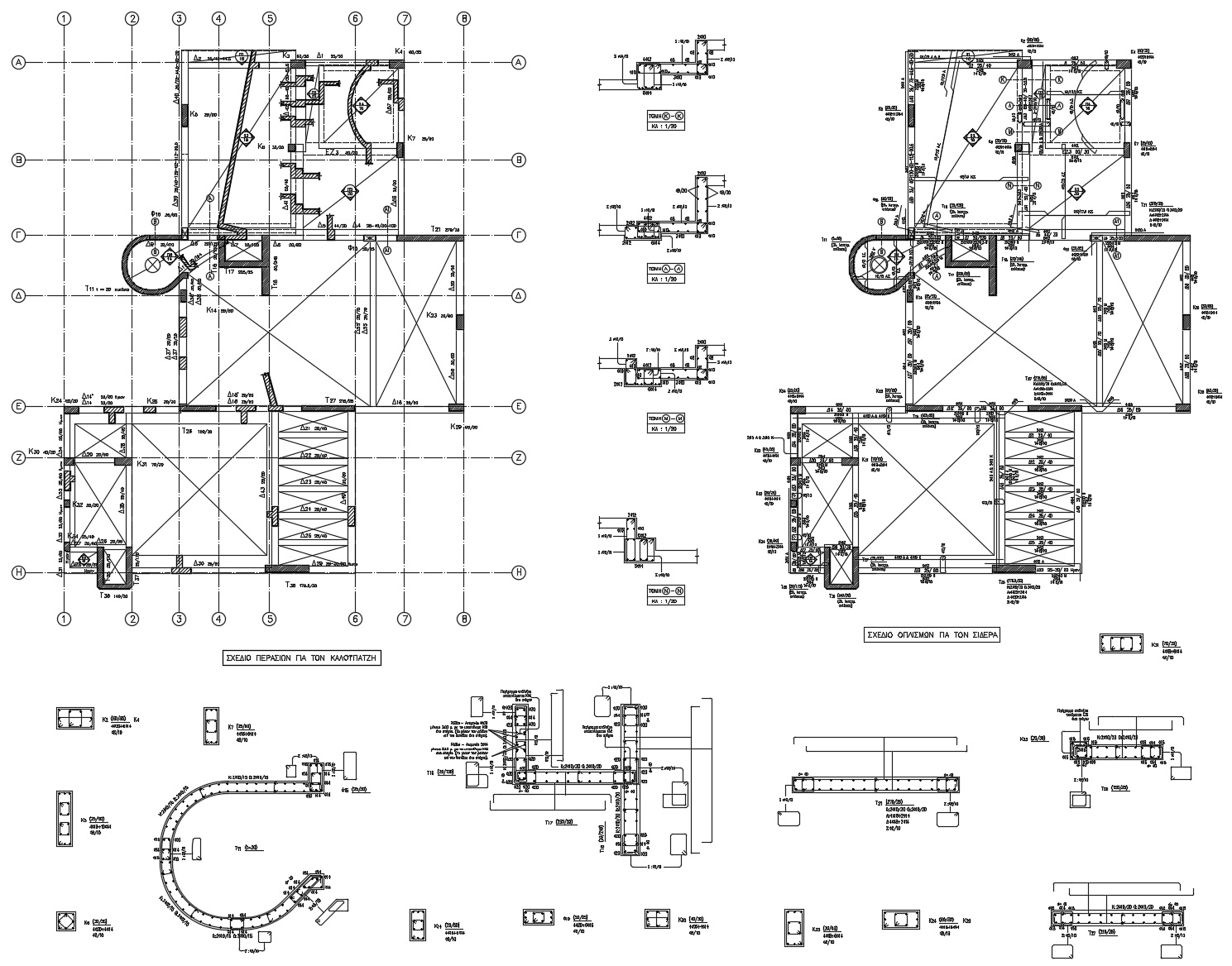
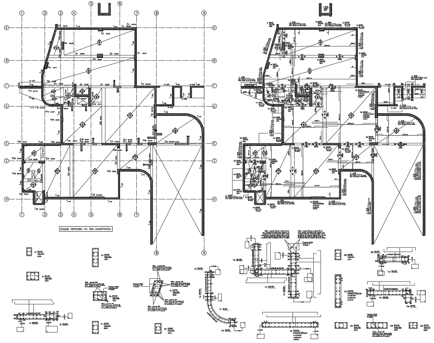
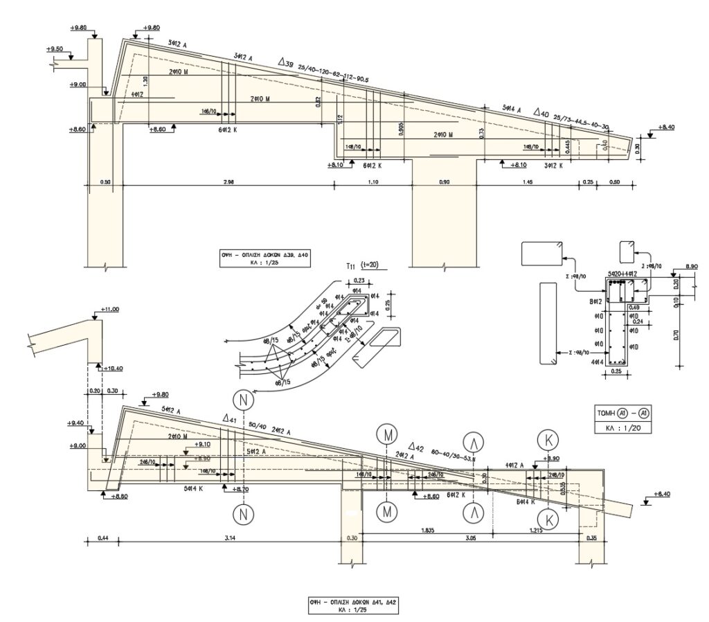
Η μελέτη αφορά κτίριο συγκροτήματος κατοικιών στην Παλαιά Πεντέλη Αττικής. Το κτίριο αποτελείται από δύο υπόγεια, ισόγειο και Α’ όροφο, υπάρχει δε γενικευμένη επικάλυψη με κεραμοσκεπή και τοπικής έκτασης επίπεδο καθώς και κεκλιμένο δώμα. Εντός του οικοπέδου και ως στατικά ανεξάρτητος φορέας, υπάρχει κολυμβητική δεξαμενή, με το αντίστοιχο μηχανοστάσιο και δεξαμενή υπερχείλισης. Ο Φέρων Οργανισμός του κτιρίου, της κολυμβητικής δεξαμενής και των τοιχωμάτων αντιστήριξης του περιβάλλοντος χώρου είναι από οπλισμένο σκυρόδεμα.



















