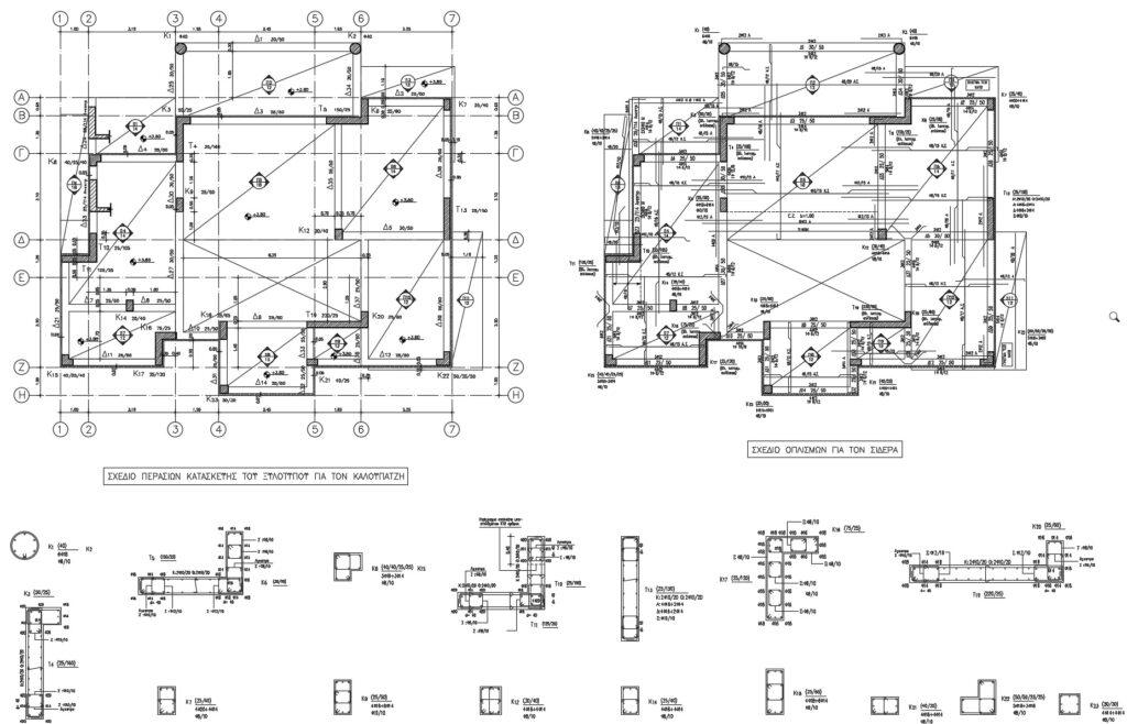
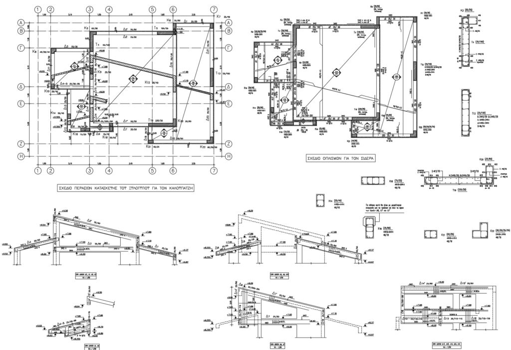
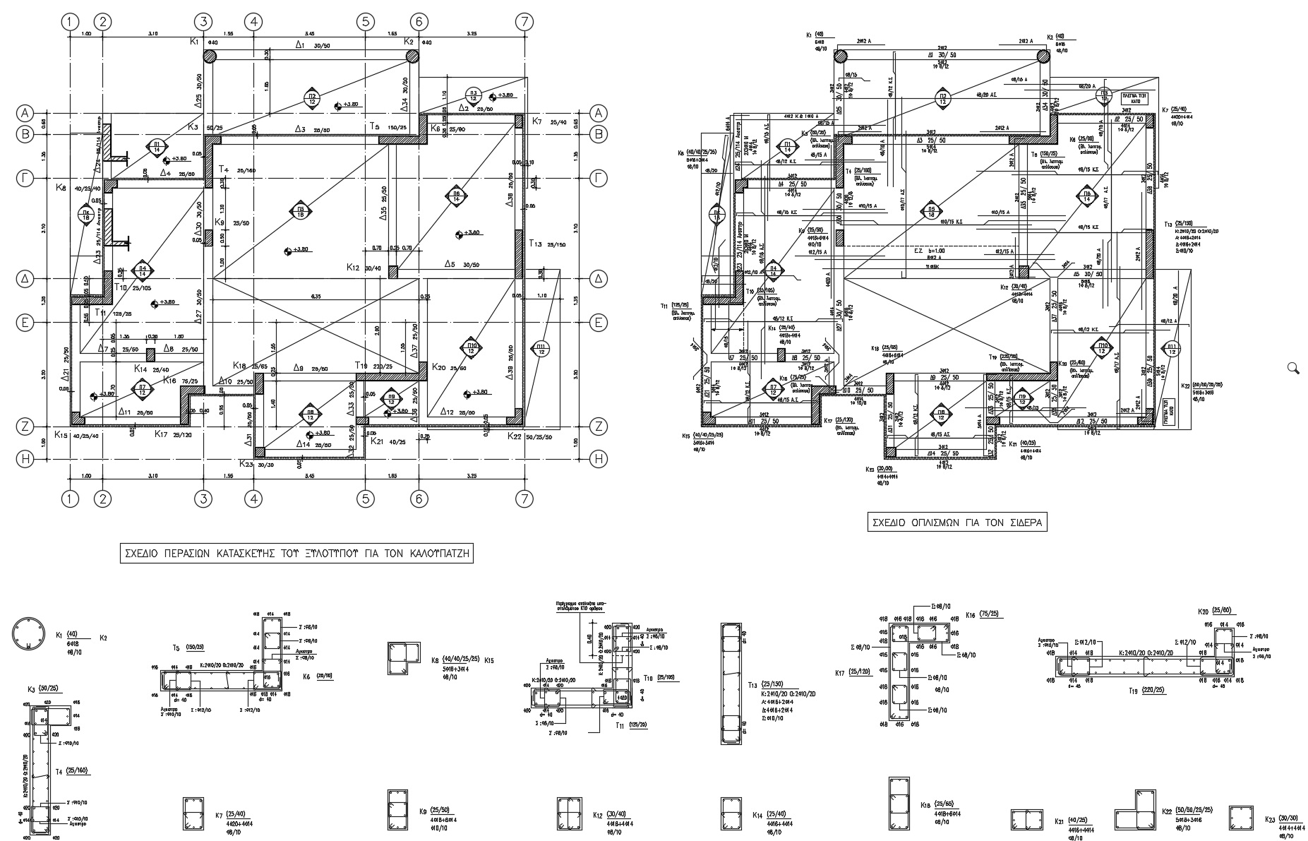
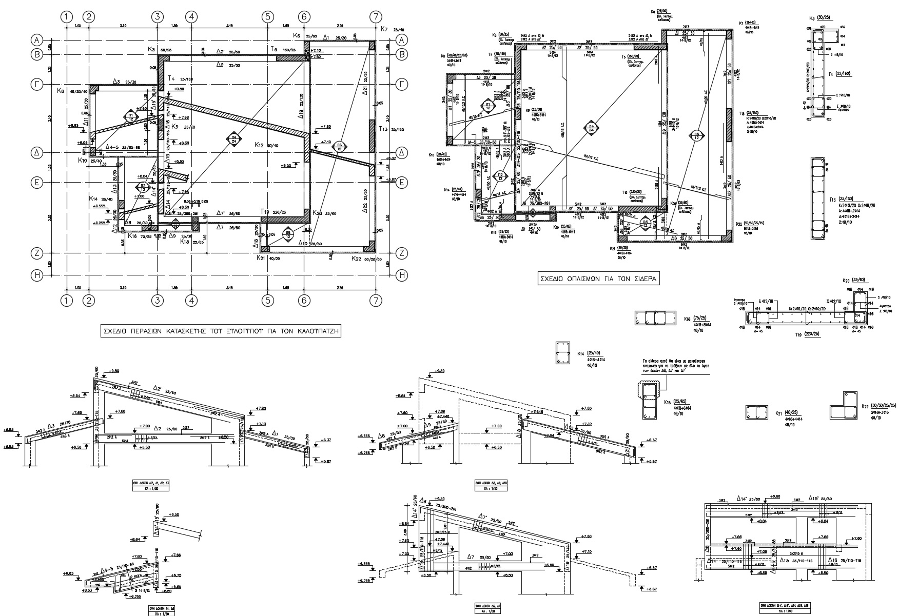
ΟΙΝΙΑΔΕΣ – ΜΟΝΟΚΑΤΟΙΚΙΑ
Περιγραφή έργου
Εργοδότης : Ιδιώτης
Έτος Μελέτης : 2004
Αρχιτεκτονική μελέτη : Καρβέλης Ζαφίρης
Η μελέτη αφορά κατοικία που κατασκευάστηκε σε οικόπεδο στην περιοχή Γούρια – Οινιάδες. Το κτίριο αποτελείται από Ισόγειο και Α’ Οροφο, ενώ δεν προβλέπεται η προσθήκη άλλου ορόφου. Ο Φέρων Οργανισμός του κτιρίου είναι από οπλισμένο σκυρόδεμα.











