ΜΥΚΟΝΟΣ – ΕΞΟΧΙΚΗ ΚΑΤΟΙΚΙΑ
Περιγραφή έργου

Εργοδότης : Ιδιώτης

Έτος Μελέτης : 2019

Ετος Κατασκευής : 2019 – 2020

Αρχιτεκτονική μελέτη : Φωτιάδης Φίλλιπος

Η μελέτη αφορά :

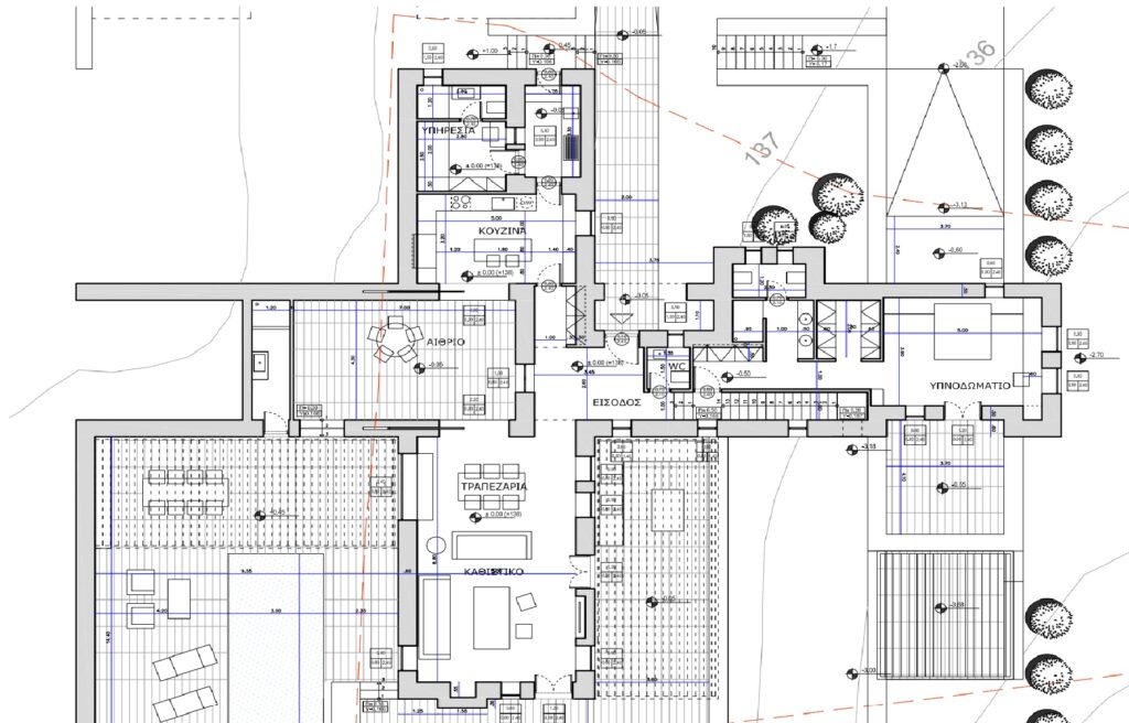
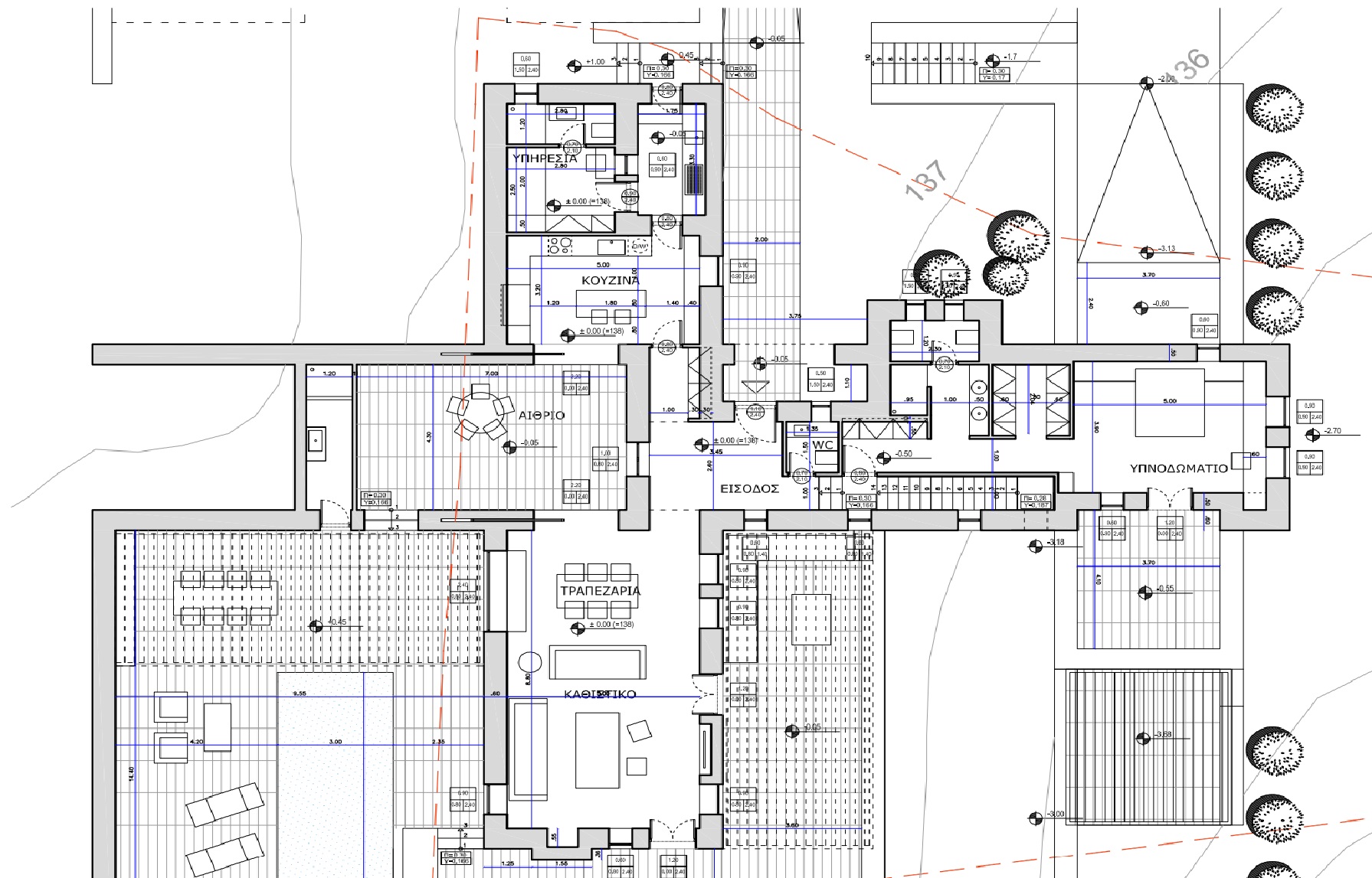
Α) νέα Ισόγεια κατοικία με περιορισμένης κατόψεως υπόγειο,

Β) νέο, στατικά ανεξάρτητου από την κυρία κατοικία, μονόροφο υπόσκαφο κτίριο με χρήση ξενώνων,

Γ) νέα κολυμβητική δεξαμενή μετά του μηχανοστασίου και της δεξαμενής υπερχείλισης αυτής,

Δ) νέα υπόγειας δεξαμενής ακαθάρτων εντός της κατοικίας, κάτω από του ισόγειούς της χώρους,

Ε) νέας υπόγειας δεξαμενής ύδατος, κατά προέκταση του υπόσκαφου κτιρίου,

ΣΤ) νέων τοιχείων αντιστηρίξεως περιβάλλοντος χώρου.

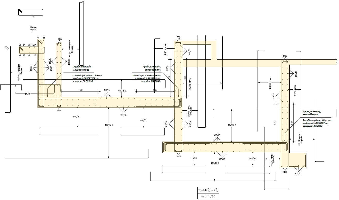
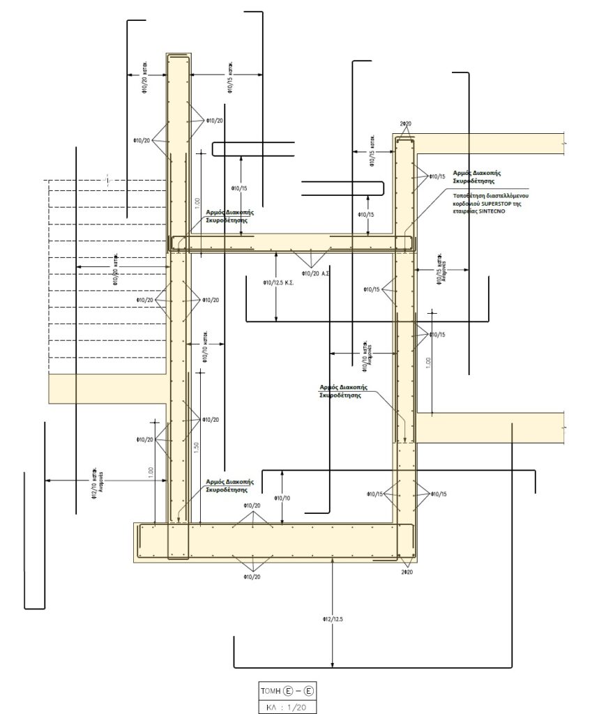
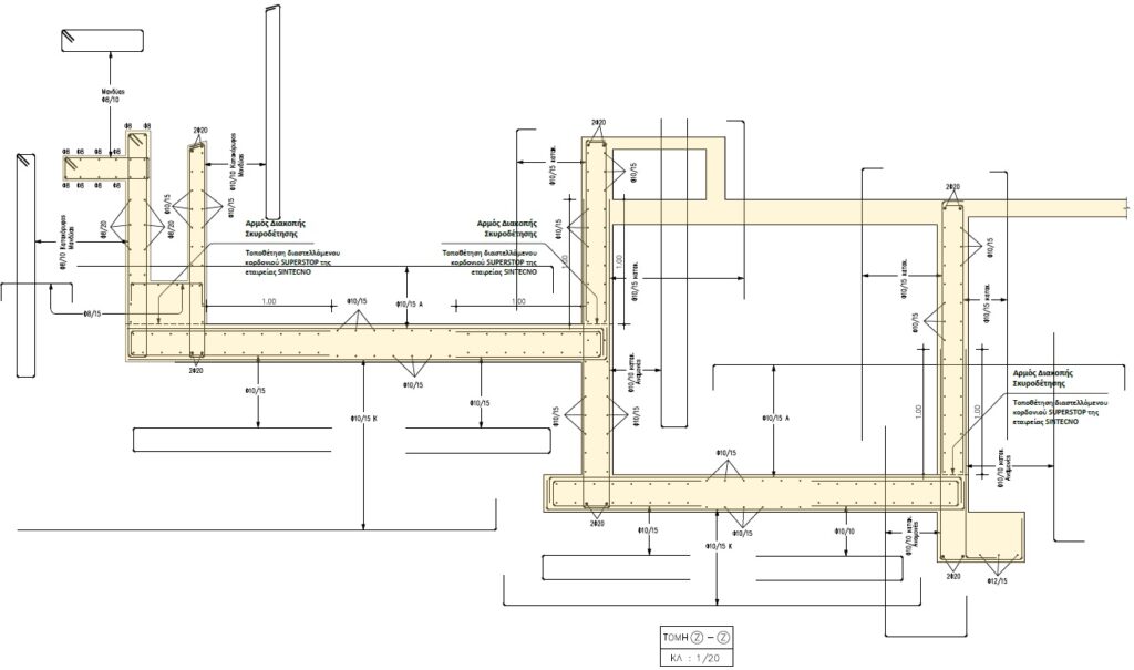
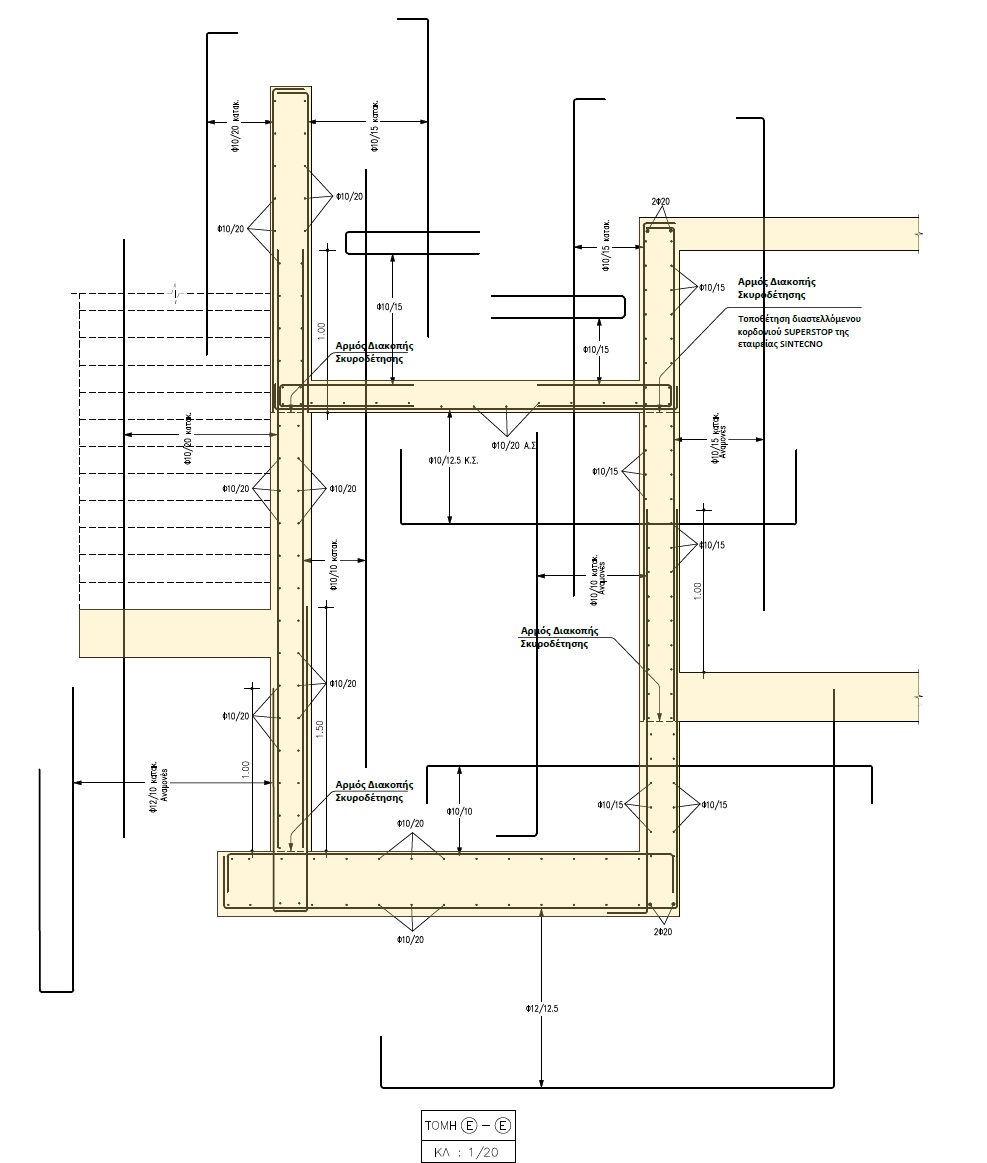
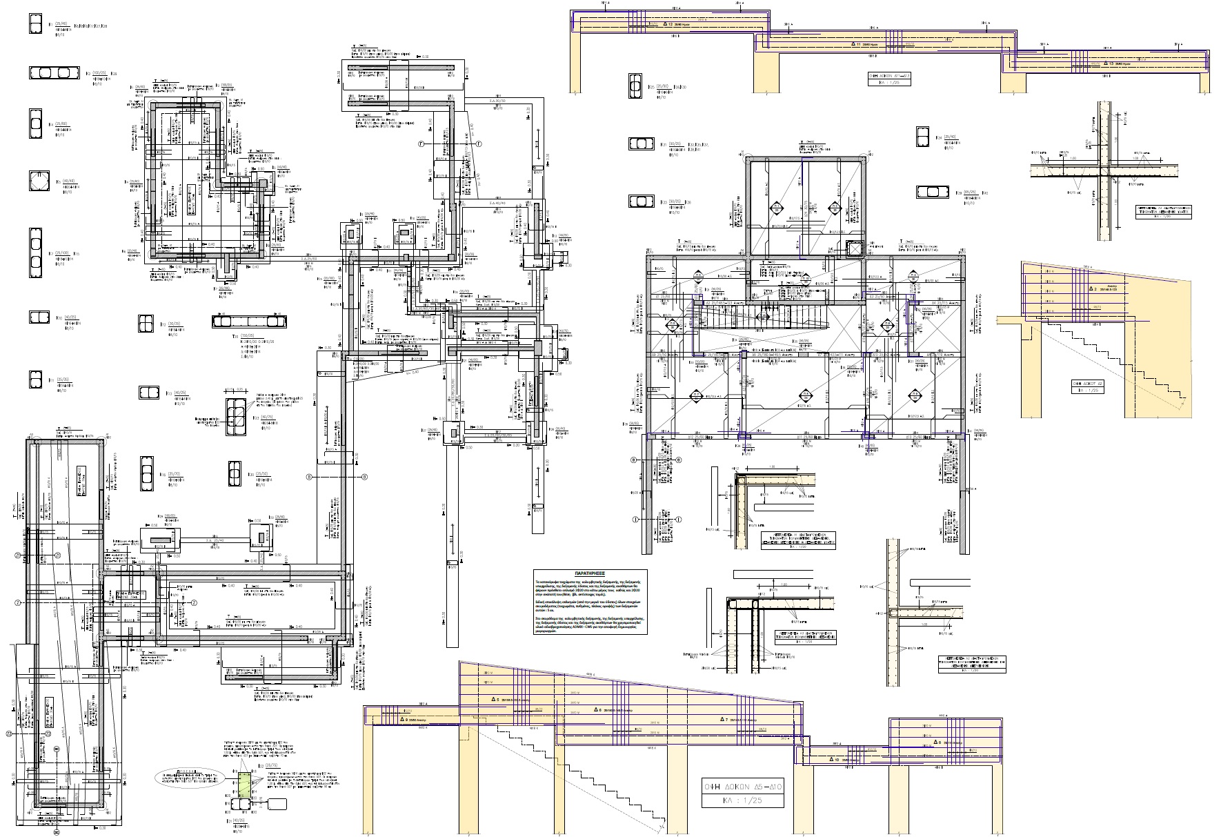
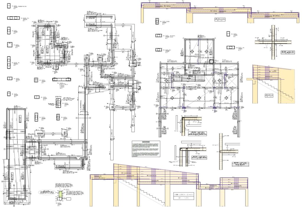
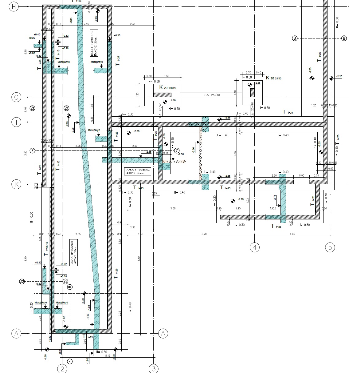
Η κατοικία με τα παρακολουθήματά της κατασκευάστηκε στην εκτός σχεδίου θέση θέση «ΤΟΥΡΛΟΣ», στην νήσο Μύκονο. Ο Φέρων Οργανισμός είναι από Οπλισμένο Σκυρόδεμα.

Κατά τον σχεδιασμό και την διάταξη των στοιχείων Οπλισμένου Σκυροδέματος, ελήφθη υπόψη η απαίτηση της αρχιτεκτονικής μελέτης για τελική εμφάνιση συγκεκριμένων κατακόρυφων τοίχων είτε με επίχρισμα, είτε χωρίς επίχρισμα αλλά με επένδυση με πέτρα, είτε από την μία πλευρά τους είτε και από τις δύο, ώστε οπτικά να δίδεται η εντύπωση ενιαίων τοίχων μεγάλου πάχους από λιθοδομή.

Στο μεγαλύτερο τμήμα της ταράτσας της ισόγειας κατοικίας, προβλέπεται φορτίο λόγω επιβολής κηπευτικού χώματος φύτευσης, πάχους έως 40 εκ. Αντίστοιχα, στο υπόσκαφο κτίριο, έχουν ληφθεί υπόψη τα φορτία κάλυψης με χώμα, ύψους αυτού που προβλέπεται από την αντίστοιχη αρχιτεκτονική μελέτη.

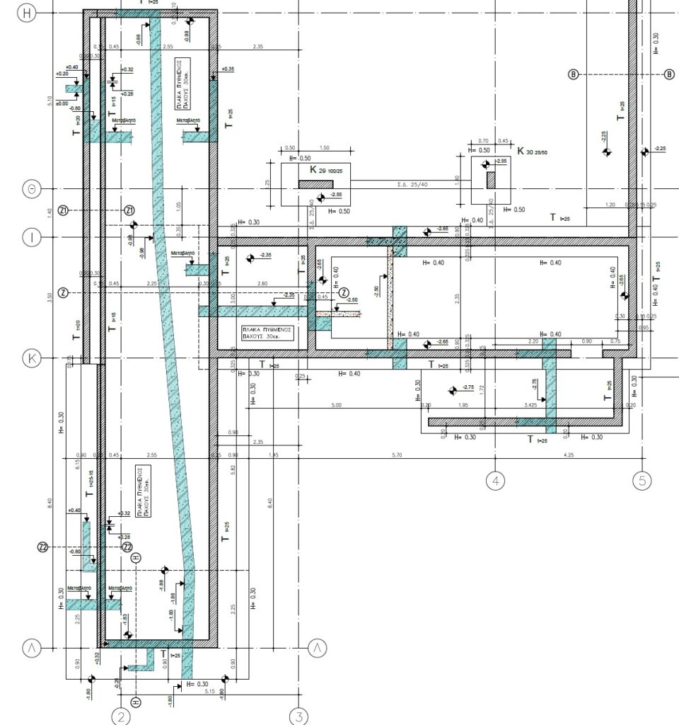
Λόγω του επικλινούς εδάφους και του περιορισμένης κατόψεως υπογείου της κύριας κατοικίας, η θεμελίωση όλων των στοιχείων οπλισμένου σκυροδέματος έγινε σε πολλαπλά επίπεδα, όπως αυτά δεικνύονται στα αντίστοιχα σχέδια κατόψεων και τομών. Η θεμελίωση του κτιρίου της ισόγειας οικίας (και του υπογείου αυτής) και του υπόσκαφου κτιρίου ξενώνων επιλέχθηκε να είναι από πεδιλοδοκούς σε συνδυασμό με ενίοτε μεμονωμένα πέδιλα και συνδετήρια δοκάρια, κατά περίπτωση.

Φωτογραφικό υλικό εργου