ΚΩΣ – ΕΞΟΧΙΚΗ ΚΑΤΟΙΚΙΑ
Περιγραφή έργου

Εργοδότης : BERIOS S.A. Κατασκευαστική Εταιρεία

Έτος Μελέτης : 2020

Αρχιτεκτονική μελέτη : MASTROMINAS ARCHITECTURE

Κατασκευαστής : BERIOS S.A. Κατασκευαστική Εταιρεία

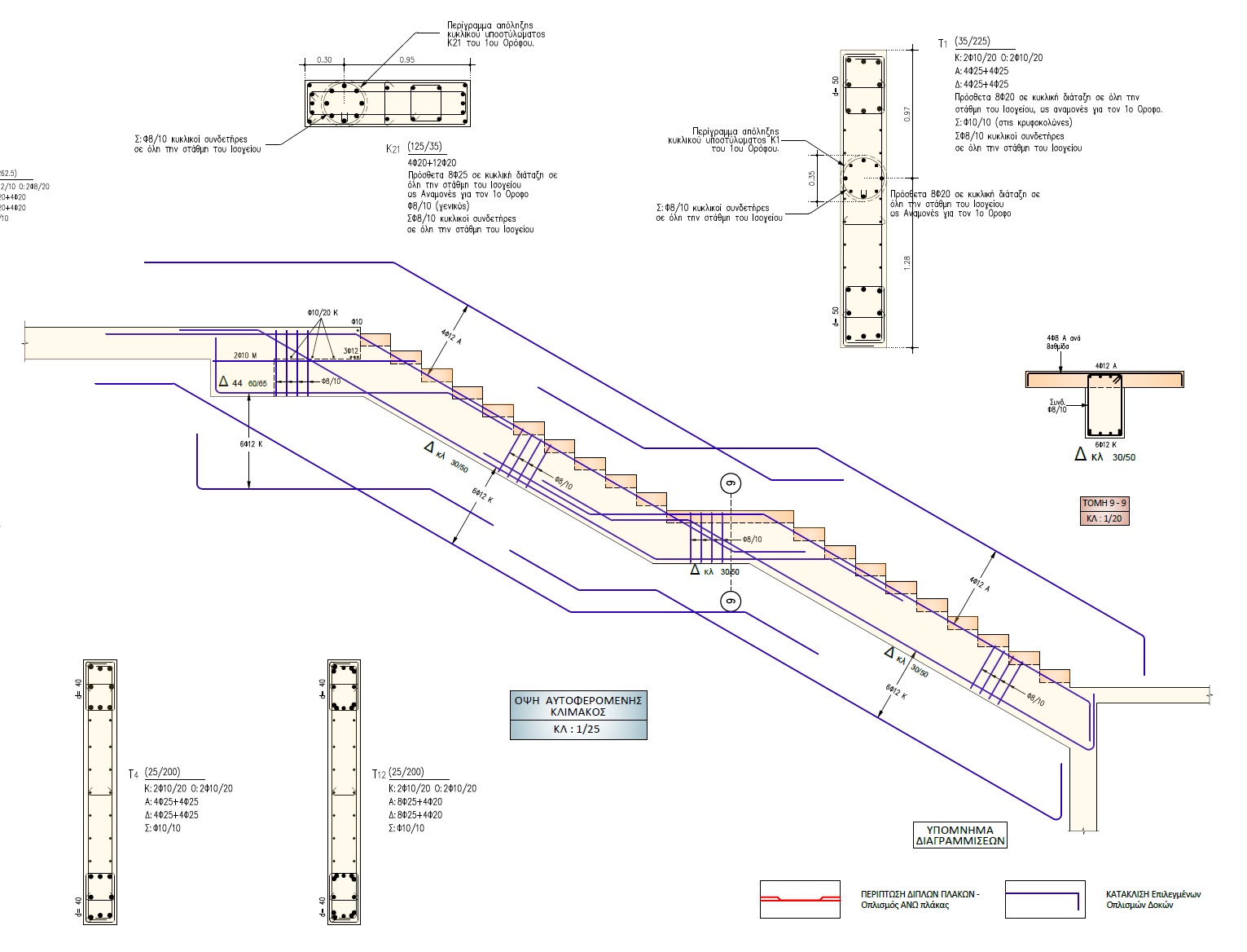
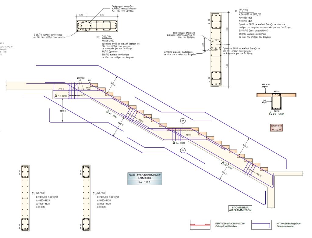
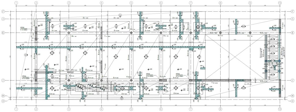
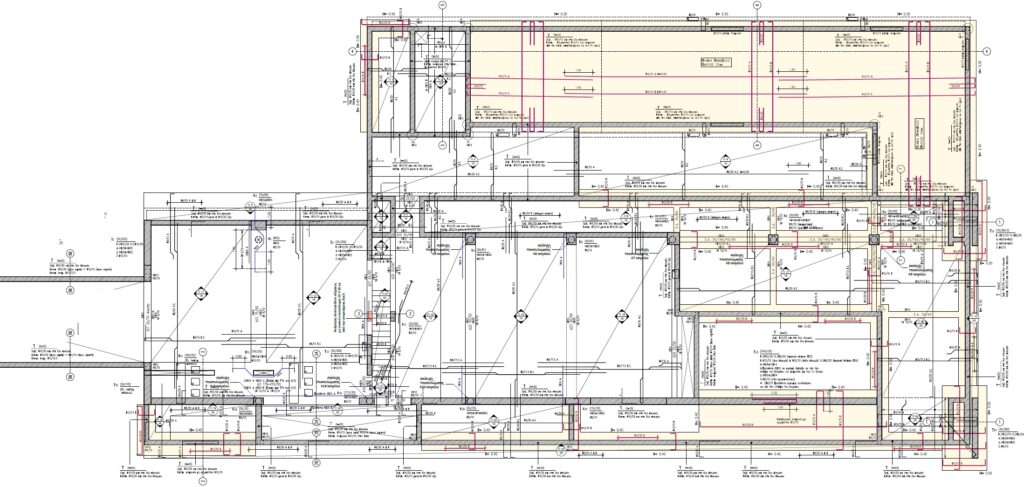
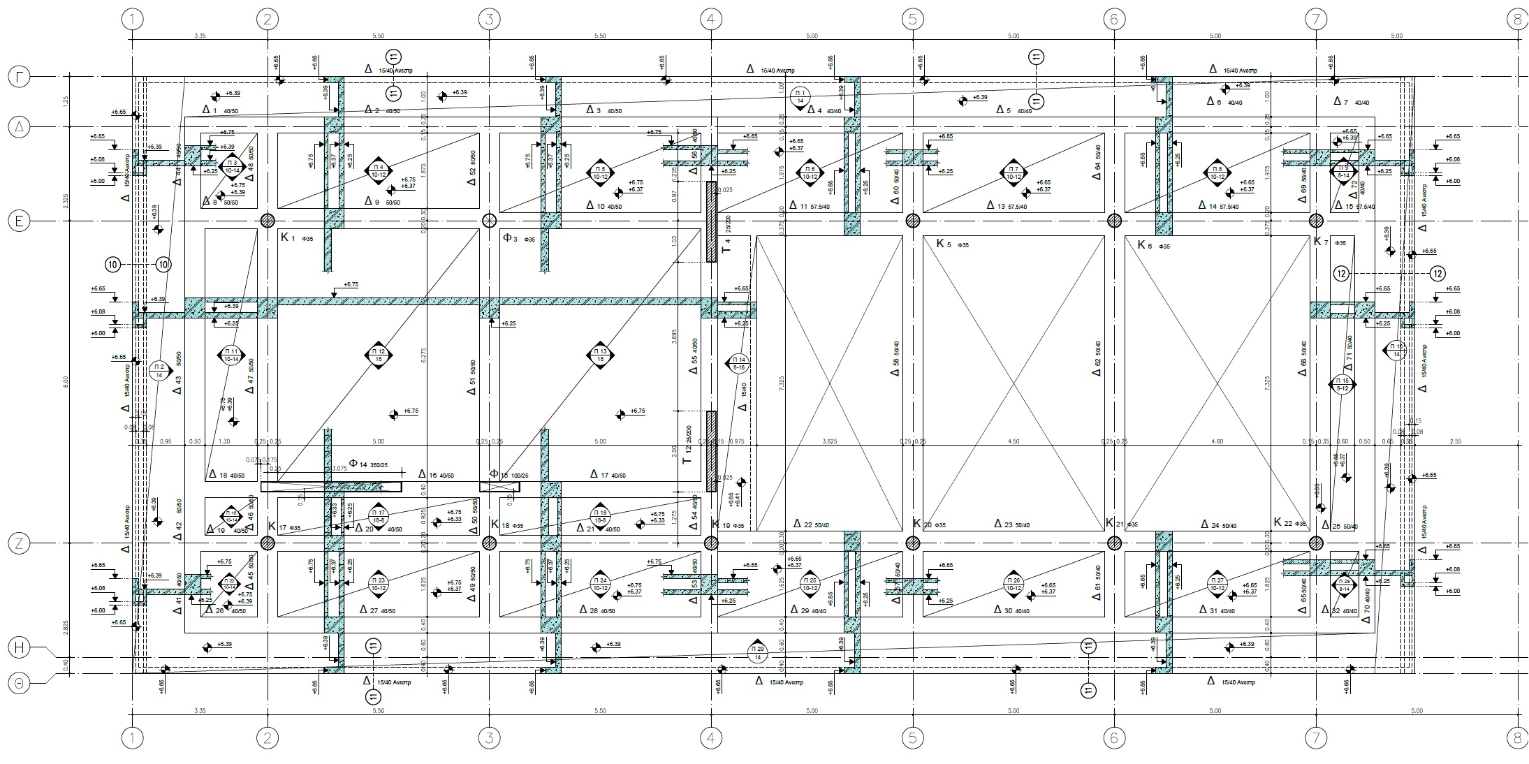
Πρόκειται για συγκρότημα δύο κατοικιών με περιορισμένης κατόψεως Yπόγειο, Ισόγειο και Α’ Οροφο. Περιλαμβάνει Δεξαμενή Κολύμβησης, Δεξαμενή Υπερχείλισης και Υπόγειο Μηχανοστάσιο. Ο Φέρων Οργανισμός του συνόλου του έργου θα κατασκευαστεί από Οπλισμένο Σκυρόδεμα. Περιορισμένος αριθμός τεμαχίων μεταλλικών δοκών προβλέπεται στην παρούσα μελέτη, στα πλαίσια τοπικών ενισχύσεων, όπου αυτές κρίθηκαν αναγκαίες. Στην οροφή Ισογείου και Α’ Ορόφου του κτιρίου και για αρχιτεκτονικούς λόγους, συγκεκριμένες πλάκες έχουν προβλεφθεί να κατασκευαστούν διπλές. Στην μελέτη,  κατά περίπτωση, έχει προσδιοριστεί ποιες από τις δύο πλάκες θεωρούνται κύριες (π.χ. επ’ αυτών που πακτώνονται εν συνεχεία οι μονές περιμετρικές πλάκες – πρόβολοι) και ποιες δευτερεύουσες.

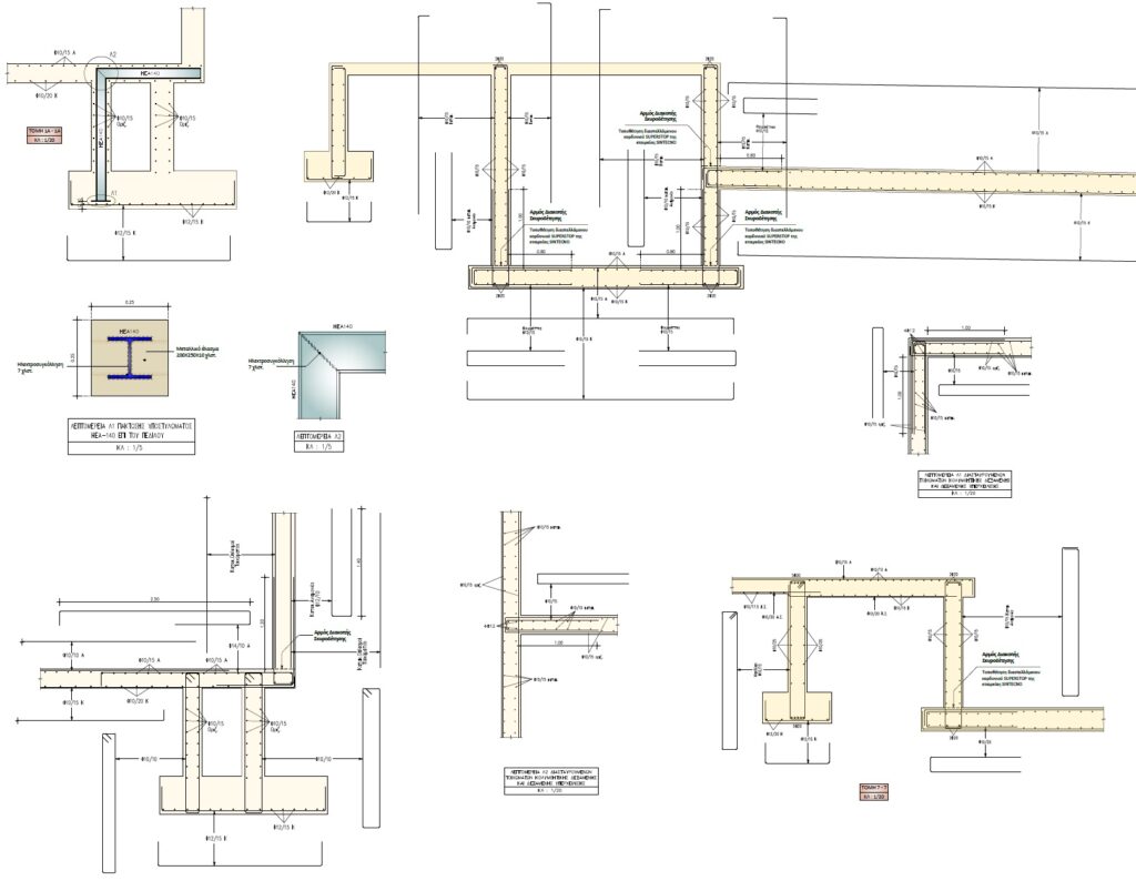
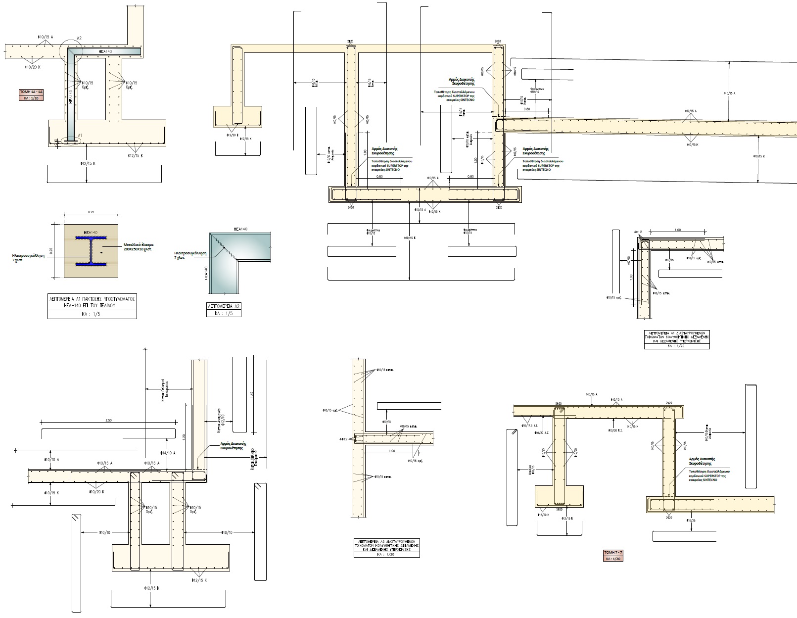
Για την πέργκολα με τις πλάκες – σκέπαστρα που προβλέπεται να κατασκευαστεί στην δεξιά πλευρά του Ισογείου, έγινε επιπρόσθετη ακριβέστερη μελέτη, προκειμένου να διερευνηθεί πλήρως ο ακριβής τρόπος κατανομής των εντατικών μεγεθών. Ετσι, ο τοπικός φορέας αναπαραστάθηκε και επιλύθηκε με την μέθοδο των γραμμικών και επιφανειακών πεπερασμένων στοιχείων (shell elements) – χρησιμοποιήθηκε δε το πανεπιστημιακό πρόγραμμα SAP2000. Για τον περιορισμό του βέλους των δύο κύριων ενισχυμένων ζωνών της πέργκολας (του τμήματος της ζώνης – πλάκας που φέρει τις οπές)  ενσωματώνονται εντός αυτών και δύο μεταλλικές δοκοί. Η ανάλυση έδειξε ότι με την προσθήκη των δύο αυτών δοκών, εξαλείφεται στην πράξη το αναμενόμενο βέλος.

Φωτογραφικό υλικό εργου