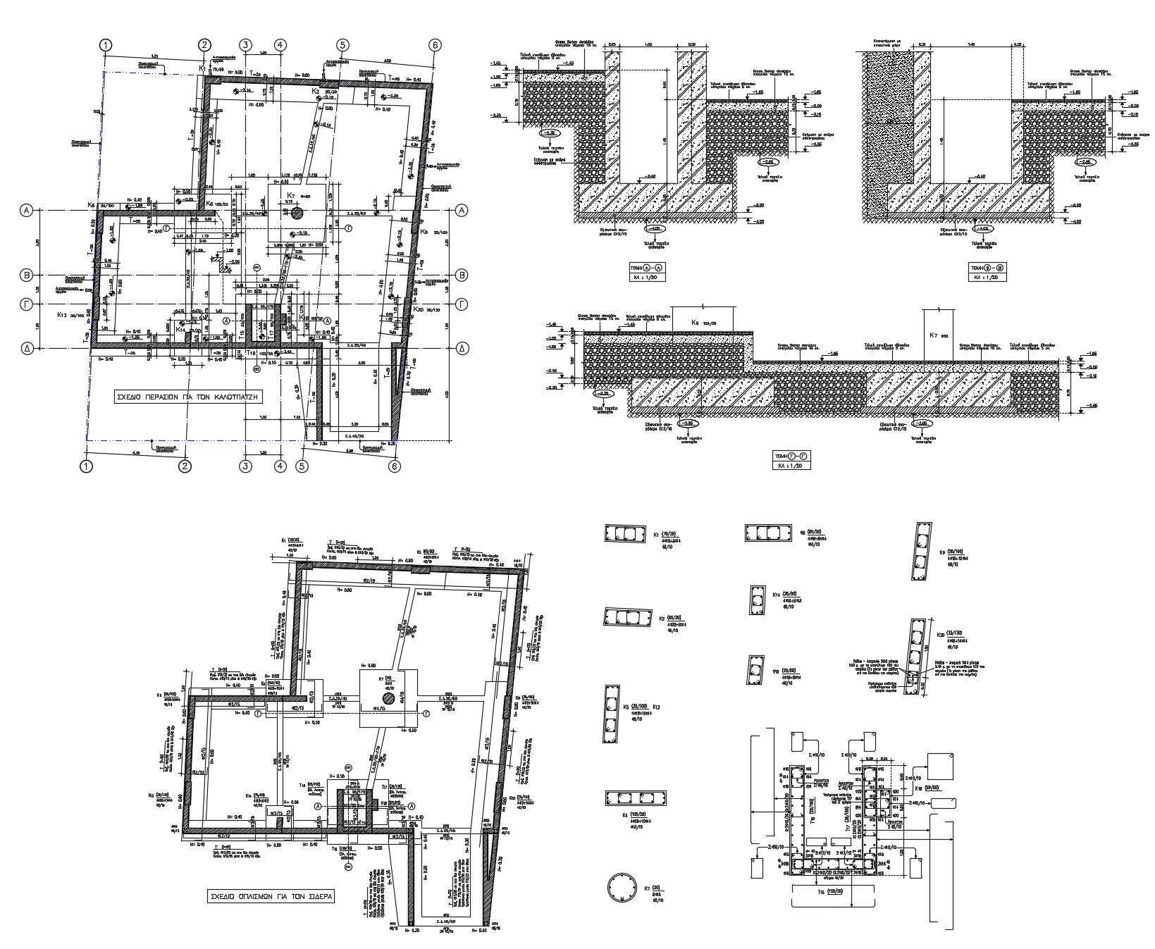
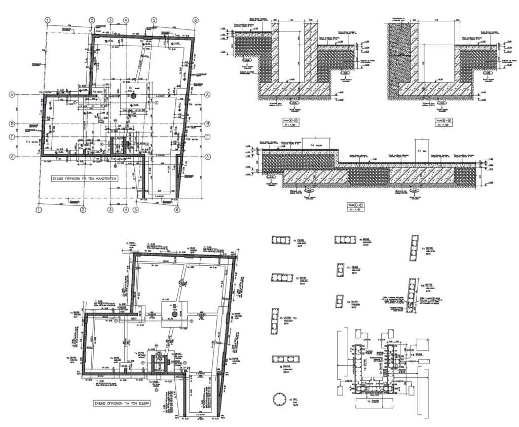
ΓΕΡΑΚΑΣ – ΜΟΝΟΚΑΤΟΙΚΙΑ
Περιγραφή έργου
Εργοδότης : Ιδιώτης
Έτος Μελέτης : 2008
Αρχιτεκτονική μελέτη : Χαραλαμπόπουλος Χρήστος
Η μελέτη αφορά διώροφη οικοδομή σε οικόπεδο στον Δήμο Γέρακα Αττικής. Η κατοικία αποτελείται δώμα το οποίο περιλαμβάνει ένα ημιυπαίθριο χώρο, Α΄ όροφο, Ισόγειο και Υπόγειο. Ο ημιυπαιθριος χώρος στο δώμα καθώς και τμήμα της οροφής του ορόφου στεγάζονται από κεκλιμένες πλάκες σκυροδέματος στις οποίες τοποθετείται επικάλυψη με κεραμίδια.
Ο Φέρων Οργανισμός του κτιρίου είναι από οπλισμένο σκυρόδεμα.










