ΧΑΛΑΝΔΡΙ – ΠΟΛΥΚΑΤΟΙΚΙΑ
Περιγραφή έργου

Εργοδότης : ATTIKH ΓH A.Κ.Τ.E.

Έτος Μελέτης : 2008

Έτος Κατασκευής : 2009

Κατασκευαστής : ATTIKH ΓH A.Κ.Τ.E.

Αρχιτεκτονική μελέτη : Αρχιτεκτονικό Γραφείο Αγαλίδη

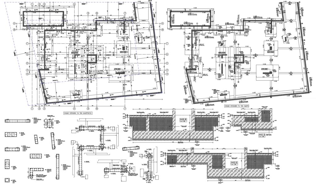
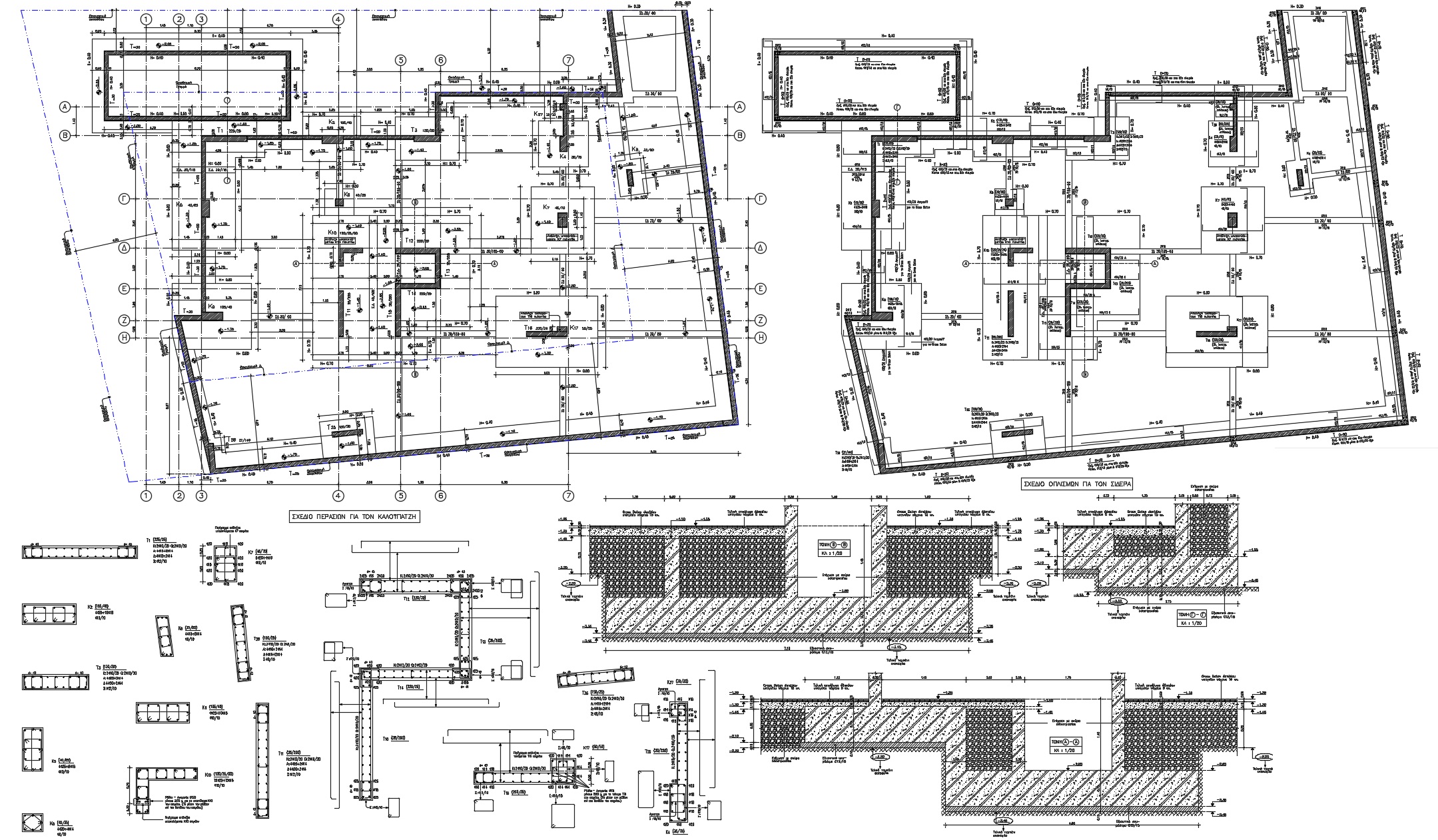
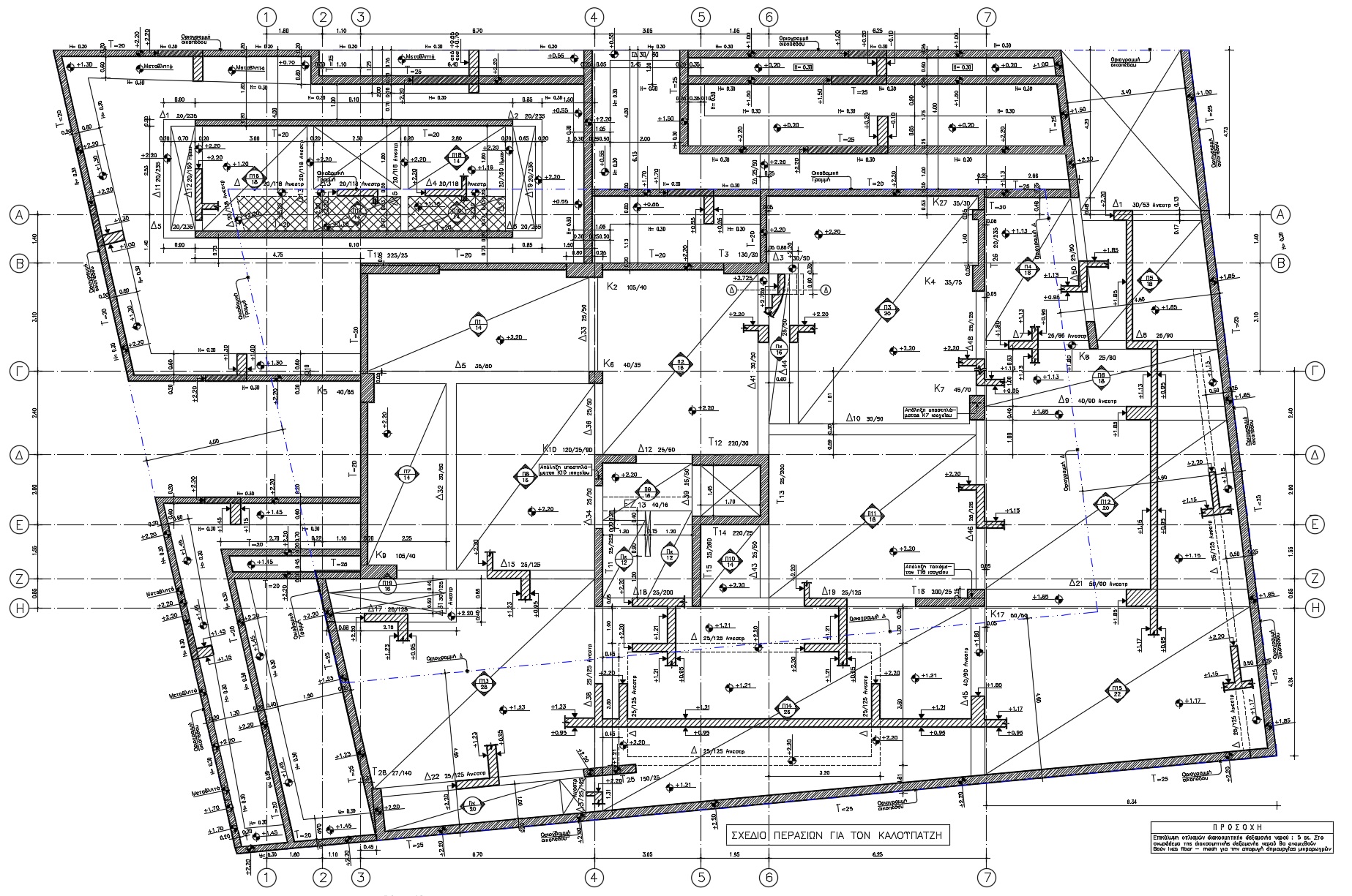
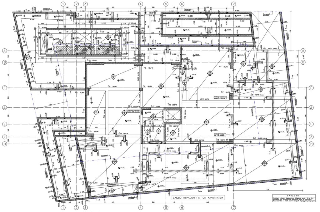
Η  μελέτη  αφορά  την ανέγερση του Φέροντος Οργανισμού τετραώροφης πολυκατοικίας με πυλωτή και υπόγειο, στο Χαλάνδρι Αττικής. Ο  Φέρων Οργανισμός του κτιρίου είναι από οπλισμένο  σκυρόδεμα. Στατικώς ανεξάρτητος από το κτίριο κατασκευάστηκε ο υποσταθμός της ΔΕΗ, επίσης με Φέροντα Οργανισμό από οπλισμένο σκυρόδεμα.

Φωτογραφικό υλικό εργου