ΑΝΔΡΟΣ – ΕΞΟΧΙΚΗ ΚΑΤΟΙΚΙΑ
Περιγραφή έργου
Εργοδότης : Ιδιώτης
Έτος Μελέτης : 2008
Αρχιτεκτονική μελέτη : JR – Ρίζος Αρχιτέκτονες
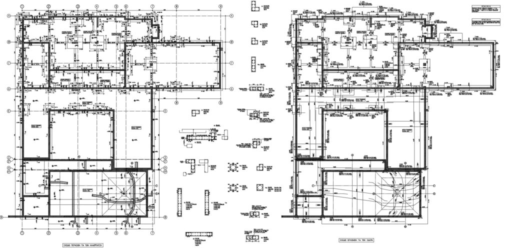
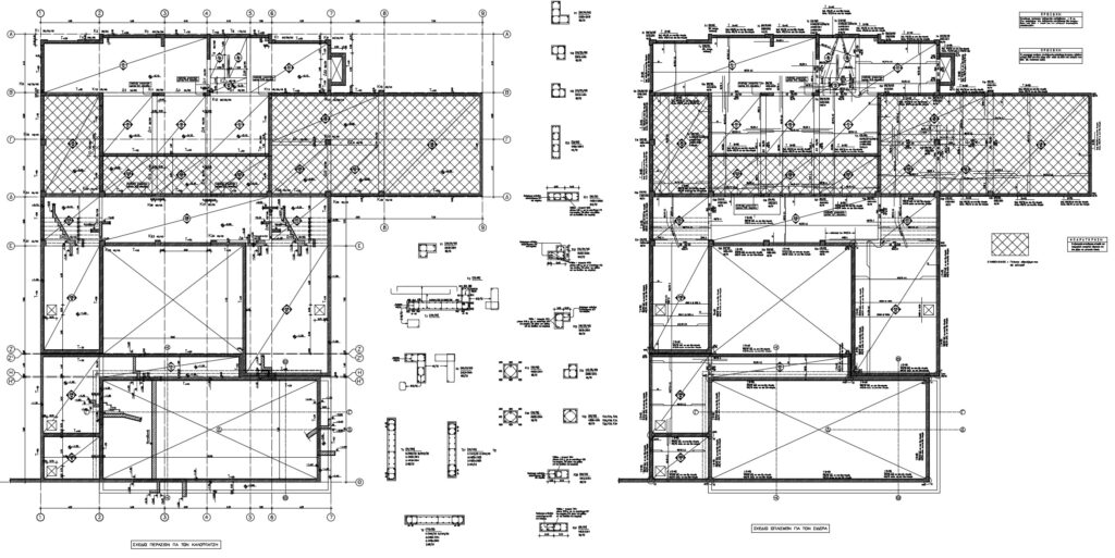
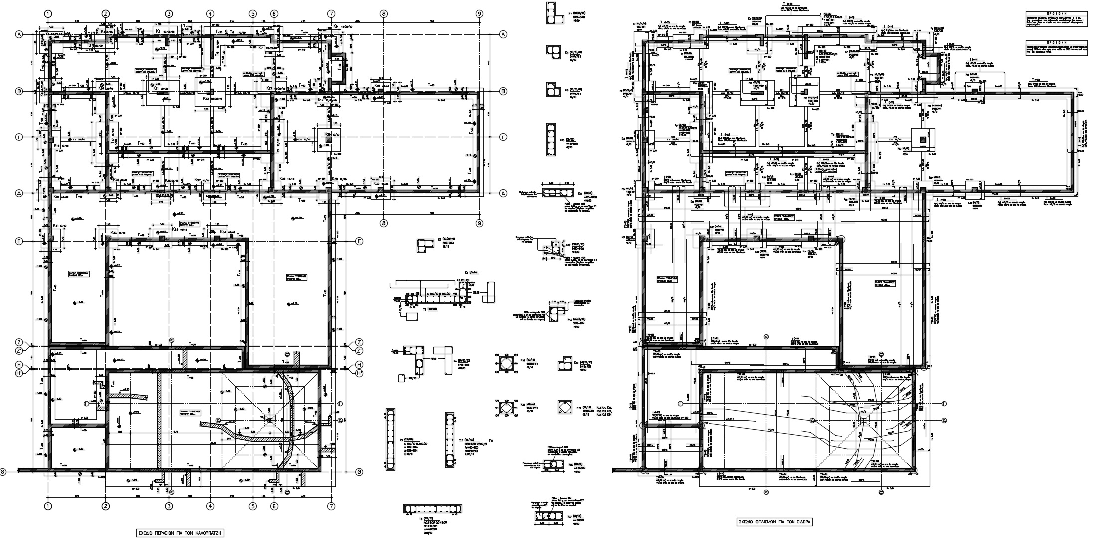
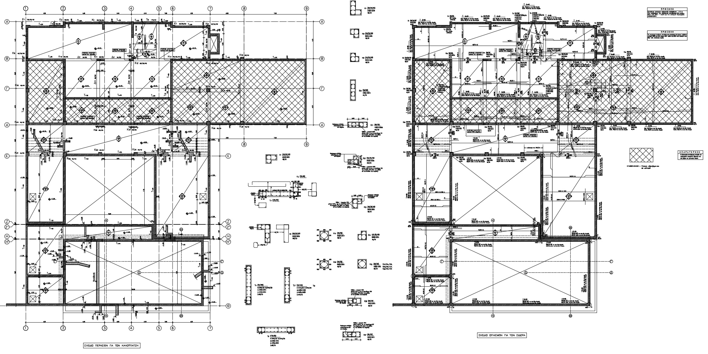
Η μελέτη αφορά την ανέγερση νέας διόροφης εξοχικής κατοικίας με υπόγειο και πισίνα, στη θέση Λουριά στην Άνδρο. Ο Φέρων Οργανισμός του κτιρίου κατασκευάστηκε με οπλισμένο σκυρόδεμα, η δε στέγη με μεταλλικό σκελετό. Αξιοσημείωτο είναι ότι για αρχιτεκτονικούς λόγους (μεγάλοι Ισόγειοι χώροι υποδοχής) στην οροφή Ισογείου διατάσσεται δοκός μήκους 12.0 μ., η οποία φέρει δύο φυτευτά υποστυλώματα (βλ. φωτογραφίες).






















