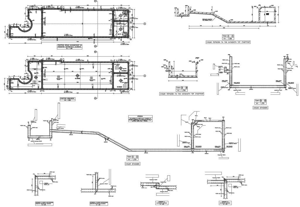
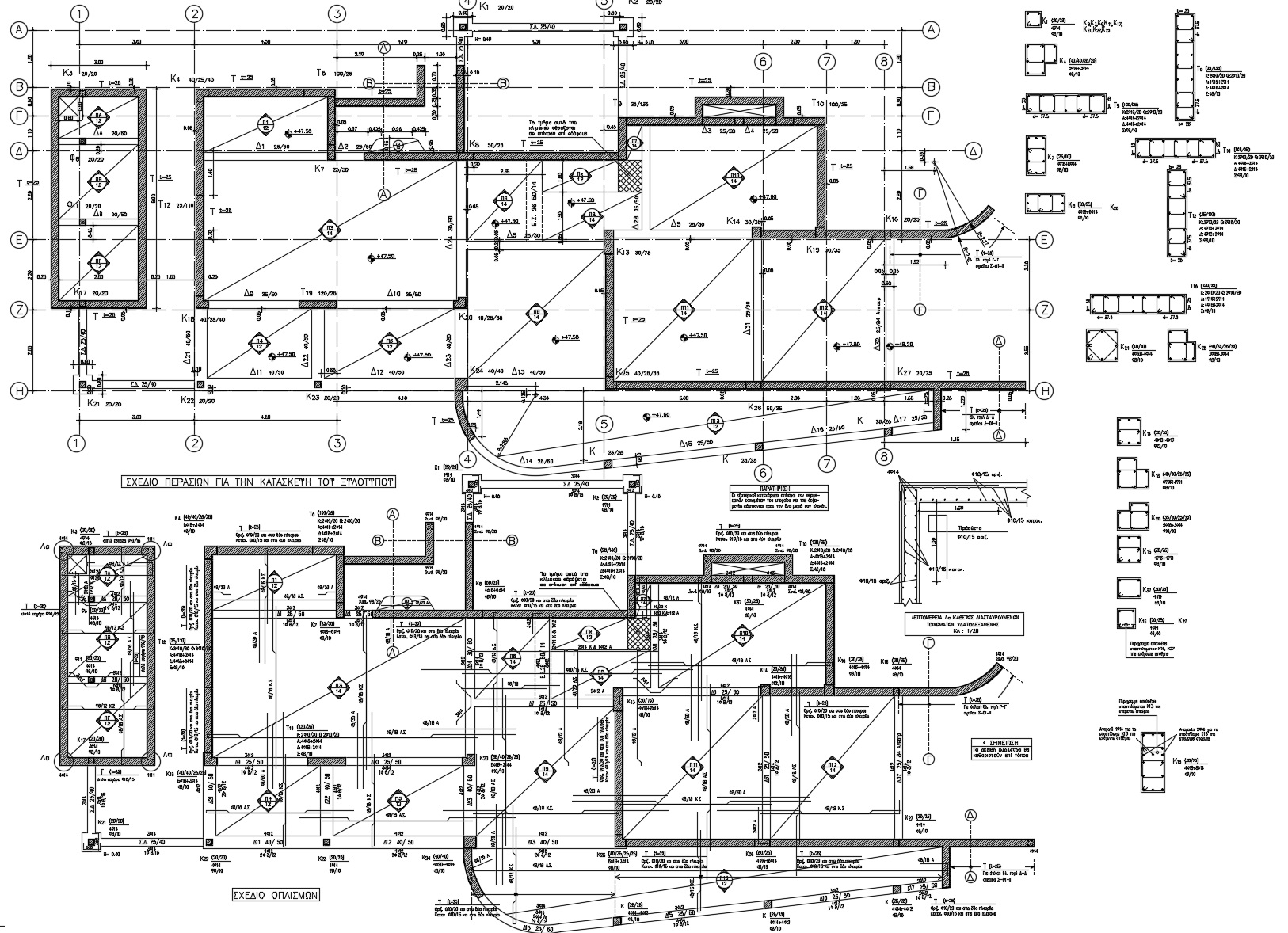
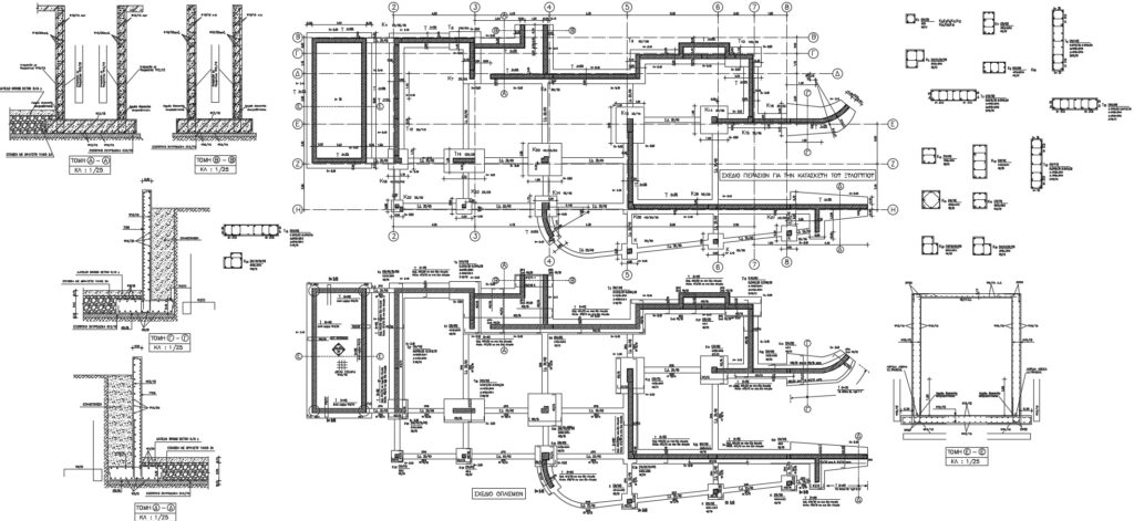
ΑΙΓΙΝΑ – ΕΞΟΧΙΚΗ ΚΑΤΟΙΚΙΑ
Περιγραφή έργου

Εργοδότης : Ιδιώτης

Έτος Μελέτης : 2002

Αρχιτεκτονική μελέτη : Μαρκοπούλου Ειρήνη

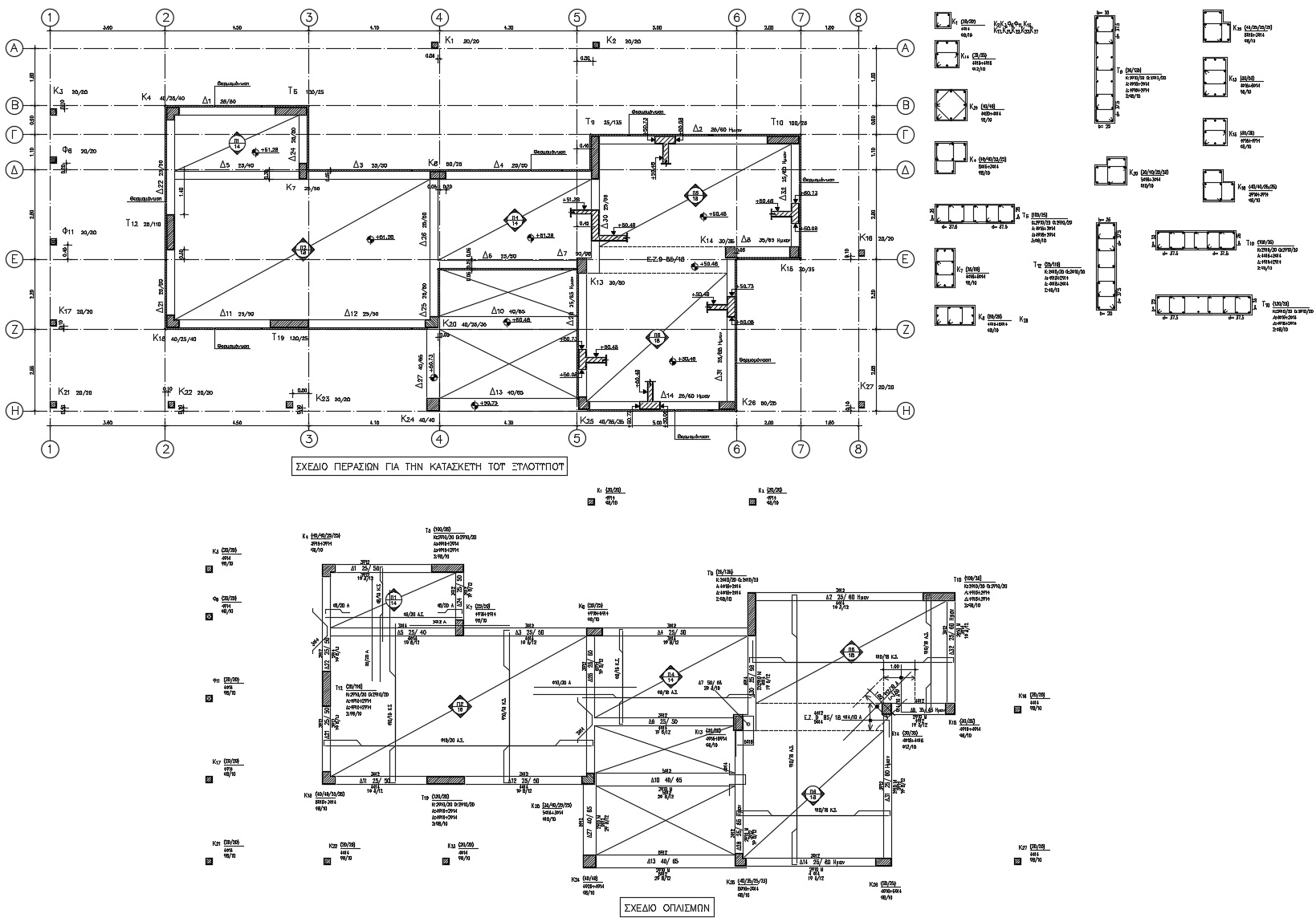
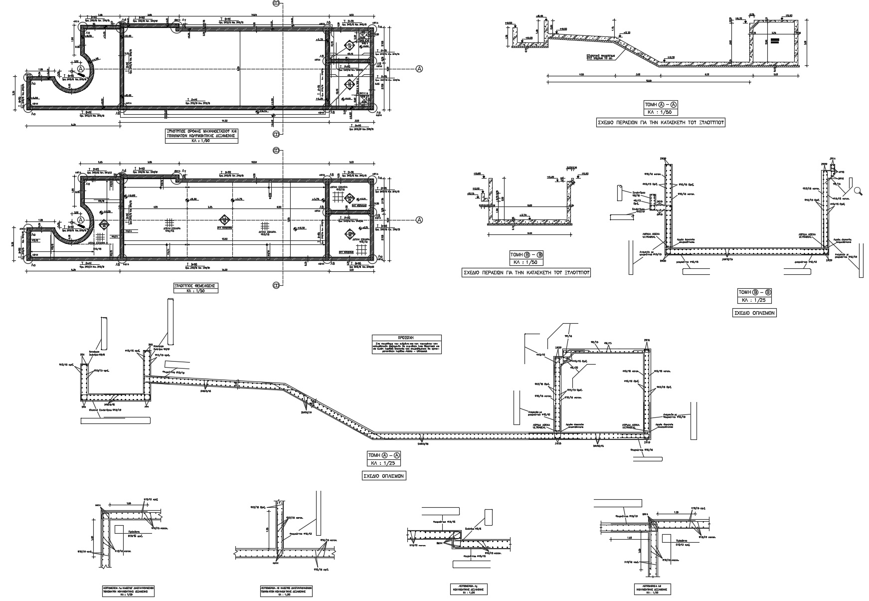
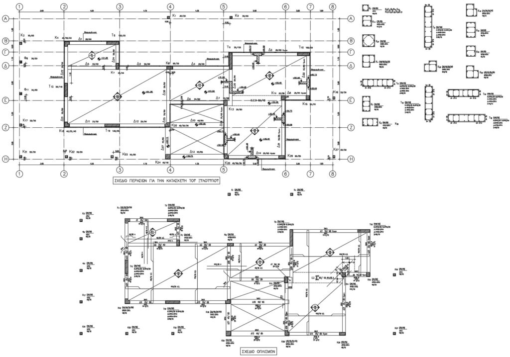
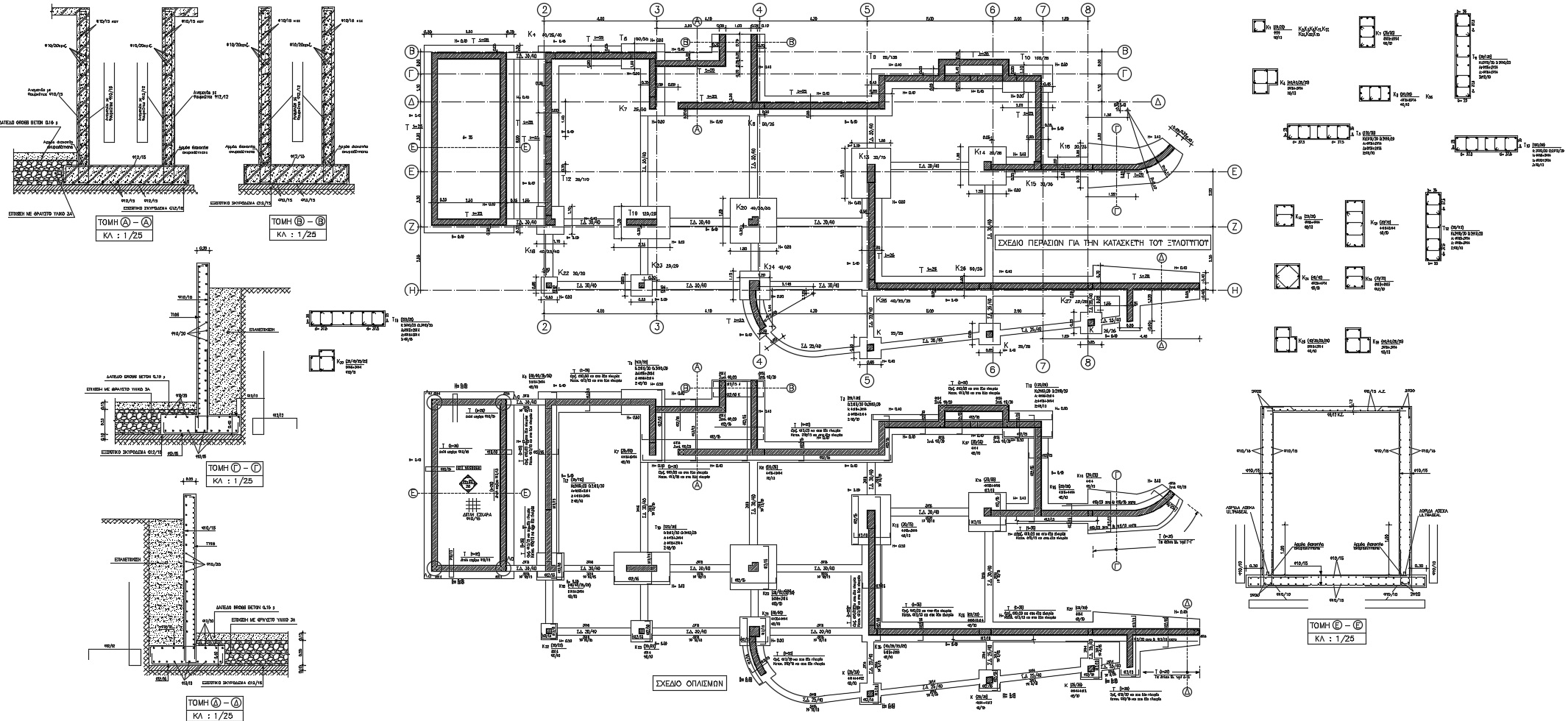
Η μελέτη αφορά την ανέγερση ανεξάρτητης κατοικίας, η οποία φέρει χώρους ισογείου και υπογείου. Κατασκευάστηκε σε οικόπεδο στην περιοχή Βροχειά της νήσου Αιγίνης.

Φωτογραφικό υλικό εργου